T3 à acquérir dans le Kastellan, à deux pas du nouveau quartier d'affaires EuroRennes - Livraison T4 2024
Rennes 35000
0
A13387 - Le nouveau Rennes se déplace vers la magnifique gare TGV et son quartier d'affaires EuroRennes, centre névralgique de la vie et des connexions de la capitale bretonne. C'est à deux pas de ce nouveau centre, au calme, dans le très prisé quartier Sainte Thérèse que LE KASTELLAN va s'ériger. Une, des prestations soignées, l'accès à une multitude de services, (commerces, métro à proximité, ?). Voilà les attraits d'une ville dynamique, constamment sur le podium des villes préférées des français.
D'autres biens de ce type (T3) sont disponibles, afin d'avoir plus de renseignements veuillez contacter l'agence.
Les informations sur les risques auxquels ce bien est exposé sont disponibles sur le site Géorisques : https://www.georisques.gouv.fr
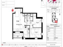
64 m²
5 467 €
3
2
1
Contact LEGGETT IMMOBILIER
Contacter gratuitement à l'aide du formulaire ci-dessous.