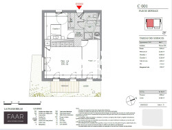
Honoraires à la charge de l'acquéreur (Prix hors honoraires : 215000 euros).
Découvrez notre nouveau programme immobilier situé dans le quartier prisé des Bretonnières, au Haut de Saint-Aubin . Avec une livraison prévue au 1er trimestre 2027 , ce projet vous propose des logements modernes, confortables et performants énergétiquement, répondant aux dernières normes environnementales Deux possibilités adaptées à vos besoins : - Résidence principale : Profitez d'une TVA réduite à 5,5% pour alléger le coût d'acquisition. Une opportunité idéale pour les primo-accédants ou ceux souhaitant devenir propriétaires tout en bénéficiant d'un cadre de vie agréable. - Investissement locatif : Pour les investisseurs, le programme est soumis à une TVA de 20% . Bénéficiez des avantages de l'immobilier neuf pour réaliser un placement sécurisé avec des performances énergétiques optimisées et des garanties locatives solides. Située dans le quartier dynamique et en plein développement du Haut de Saint-Aubin , la résidence offre un cadre de vie idéal : - Proximité des commerces, écoles et transports (tramway, bus). - Espaces verts à proximité pour un quotidien serein. - Accès facile au centre-ville et axes principaux. Pourquoi choisir un programme neuf ? Des frais de notaire réduits (environ 2 à 3%, contre 7-8% dans l'ancien). Garantie décennale et autres garanties constructeurs pour une sérénité maximale. Des logements performants énergétiquement avec une consommation maîtrisée (isolation thermique et phonique, dernières normes). Personnalisation : Choisissez vos finitions pour créer un intérieur qui vous ressemble. Aucune rénovation à prévoir : Emménagez dans un logement neuf et moderne dès sa livraison. Saisissez cette occasion unique d'accéder à la propriété ou d'investir dans un programme neuf de qualité, à l'emplacement stratégique des Bretonnières. Contactez-nous dès maintenant pour en savoir plus sur les disponibilités , les plans et les conditions d'acquisition !
Dans une copropriété de 46 lots. Quote-part moyenne du budget prévisionnel 1 320 /an. Aucune procédure n'est en cours. DPE en cours. Les informations sur les risques auxquels ce bien est exposé sont disponibles sur le site Géorisques : georisques.gouv.fr.