T3 à rénover ? Quartier Châteaudun Orléans (69,78 m²)
Orléans 45000
0
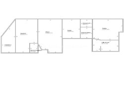
À deux pas du centre-ville d'Orléans et des bords de Loire, appartement traversant de 69,78 m² au 1er étage. Séjour lumineux, cuisine indépendante, deux chambres. Travaux à prévoir, idéal projet de rénovation dans un quartier recherché.
Il comprend :
- Un séjour lumineux de 19,62 m²,
- Une cuisine indépendante de 10,67 m² avec placard attenant,
- Deux chambres dont une grande de 16,93 m² avec rangements intégrés,
- Une salle de bain de 8,71 m².
Chauffage collectif au gaz.
L'absence de copropriété garantit une gestion libre et sans charges collectives.
Pour plus d'informations ou pour organiser une visite, contactez-nous dès maintenant.
Cette annonce référence 301391 vous est présentée par votre agent commercial BSK Immobilier KARINE DESMYTER (EI) immatriculé au RSAC de ORLEANS (45000) sous le numéro 48066420000023.
Prix du bien : 140 000,00 €
Les honoraires d'agence sont à la charge du vendeur.
A propos des performances énergétiques :
Date de réalisation du diagnostic énergétique : 06/04/2023
Score DPE : 383 kWhEP/m²/an
Score GES : 84 kgepCO2/m²/an
Montant estimé des dépenses annuelles d'énergie pour un usage standard : entre 1590.00 € et 2190.00 € par an. Prix moyens des énergies indexés sur l'année 2021 (abonnements compris).
Les informations sur les risques auxquels ce bien est exposé sont disponibles sur le site Géorisques : www.georisques.gouv.fr
69 m²
2 029 €
3
2
1
1
1
1 sur 3
1950
Consommations énergétiques
Logement économe
383
Logement énergivore (kWhEP/m2/an)
Émissions de gaz à effet de serre
Faible émission de GES
84
Forte émission de GES(kgeqCO2/m2/an)
Contact DESMYTER KARINE
Contacter gratuitement à l'aide du formulaire ci-dessous.