Sur le plateau très recherché de Caluire-et-Cuire, à quelques minutes seulement de la Croix-Rousse, découvrez un appartement 3 pièces situé dans une résidence récente, au coeur d'un environnement à la fois vivant et apaisé.
L'adresse, rue Pasteur, profite d'un cadre en pleine évolution, mêlant esprit village et connexion directe avec Lyon. À pied, vous accédez rapidement aux commerces, aux marchés et aux écoles. Les transports sont tout proches avec le bus C1 reliant la Part-Dieu et le métro Cuire, et les grands axes sont accessibles en quelques minutes, facilitant tous vos déplacements au quotidien.
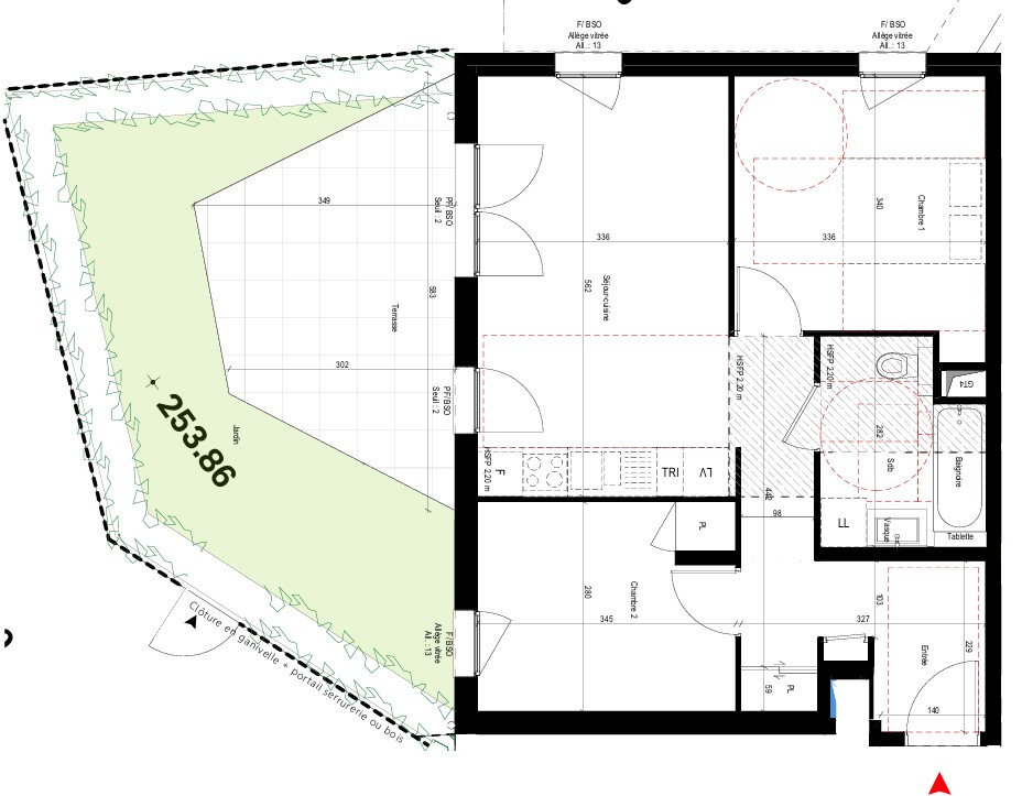
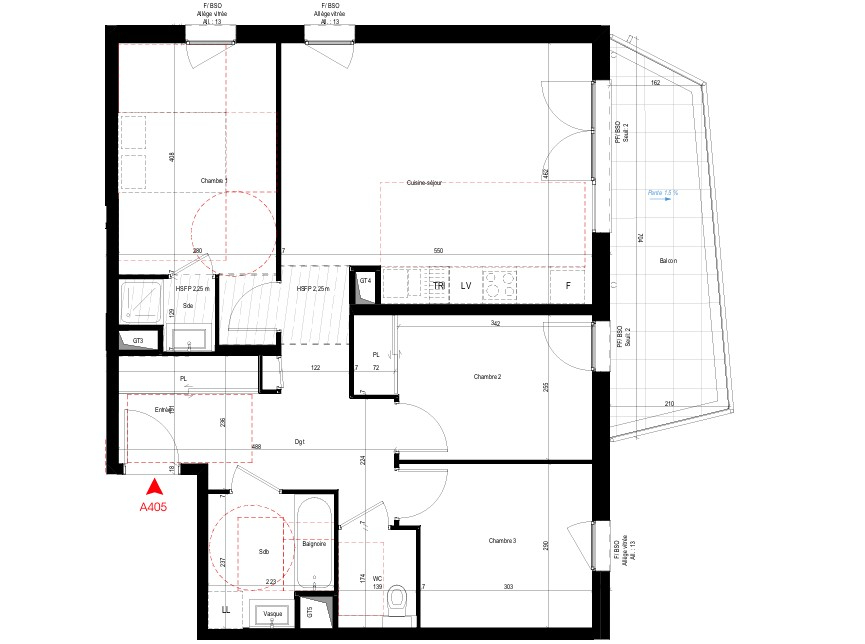
Au 3ème étage sur 4 avec ascenseur, cet appartement de 65,6 m² offre un agencement particulièrement efficace. La pièce de vie de près de 27 m², lumineuse grâce à son exposition Est-Ouest, s'ouvre sur une agréable loggia de 6,6 m², idéale pour prolonger les moments de détente.
L'espace nuit est bien séparé avec deux chambres confortables, une salle de bains équipée et des WC indépendants. Les prestations sont soignées avec menuiseries aluminium, brise-soleil orientables électriques, parquet dans les chambres et carrelage grand format dans les pièces de vie.
Vous profitez ici d'un cadre calme, tourné vers un coeur d'îlot végétalisé, véritable respiration au quotidien.
Un box en sous-sol est disponible en supplément.
Prix : 386 000 Honoraires d'agence inclus à la charge du vendeur
Estimation frais de notaire : 7 300 Estimation charges de copropriété : 110 / mois
Contactez une conseillère immobilière Accano pour en savoir plus et organiser une visite du bien.
Honoraires à la charge du vendeur. Dans une copropriété de 92 lots. Aucune procédure n'est en cours. Non soumis au DPE. Les informations sur les risques auxquels ce bien est exposé sont disponibles sur le site Géorisques : georisques.gouv.fr.