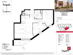
Vos agences ESPACE IMMO vous proposent à la vente ce beau T3 dans une nouvelle résidence "SAINT EXUPERY", située sur Mont-Saint-Aignan , à proximité de toutes commodités, écoles et commerces. Cette résidence se compose de 36 logements avec un parking en sous-sol permettant le stationnement des résidents. Elle se situe à proximité de la Place Colbert. Nous vous proposons ce T3 situé au troisième étage comprenant : un spacieux séjour cuisine de 29 m² , deux belles chambres, une salle de bains et un WC indépendant. Vous disposerez d'un balcon de 5m² pour profiter des beaux jours, d'une place de parking en sous-sol sécurisé pour faciliter votre stationnement. Date de livraison prévue pour le 4ème trimestre 2027 ! !! FRAIS DE NOTAIRE REDUITS !! D'autres appartements T2 et T3 sont disponibles ! Contactez votre agence ESPACE IMMO - Nina NOËL au 02.32.10.52.14 pour vous présenter ce beau projet. Les informations sur les risques auxquels ce bien est exposé sont disponibles sur le site Géorisques : www.georisques.gouv.fr. Copropriété de 36 lots - dont 36 lots habitation.