À VENDRE EN EXCLUSIVITÉ : APPARTEMENT T3 Avec Jardin et Garage PESSAC MAGONTY
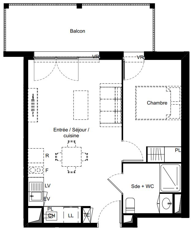
-> Le bien : Chambres : 2 Salles de bain : 1 Surface : 64.50 m² Extérieur : Jardin - Terrasse Stationnement : 1 place extérieure sécurisée Stationnement : Garage Dépendance : Cellier Commodités : Proximité écoles et commerces, parc -> Copropriété : Nombre de lots : 63 lots Charges mensuelles : 49 / mois Étage : rdc / 1 Année de construction : 2016 -> Infos pratiques : Taxe foncière : 1 330 Les photos présentées ont été générées avec l'IA. Pour tout renseignement contactez-nous : Estelle BARIAT : 07 85 90 37 46 Camille PICAREL : 07 87 19 23 82 transaction@abaquegestion.fr
Honoraires à la charge du vendeur. Dans une copropriété de 63 lots. Aucune procédure n'est en cours. Classe énergie C, Classe climat C Montant moyen estimé des dépenses annuelles d'énergie pour un usage standard, établi à partir des prix de l'énergie de l'année 2021 : entre 597.00 et 809.00 . Les informations sur les risques auxquels ce bien est exposé sont disponibles sur le site Géorisques : georisques.gouv.fr.
65.1 m²
3 710 €
24 m²
3
2
1
1 (séparé)
49.00 € / mois
2016
Est
1
1
1
Oui (63 lots)
Consommations énergétiques
Logement économe
94
Logement énergivore (kWhEP/m2/an)
Émissions de gaz à effet de serre
Faible émission de GES
18
Forte émission de GES(kgeqCO2/m2/an)
Contact ABAQUE GESTION
Contacter gratuitement à l'aide du formulaire ci-dessous.