Résidence le Noveo , à vendre T3 avec terrasse et garage
Dans une résidence de 2010 sécurisée du secteur recherché des 7 collines à Nîmes, découvrez cet agréable appartement T3 de 61 m² libre de toute occupation.
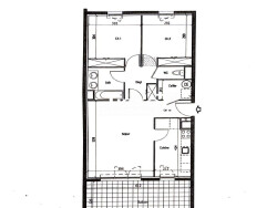
Situé au 1er étage avec ascenseur, il se compose d'une pièce de vie lumineuse avec cuisine aménagée séparé par cloison abattable, ouvrant sur une vaste terrasse exposée Ouest de 20m², un cellier, de deux chambres, d'une salle de bains et de toilettes séparées. Menuiseries pvc double vitrage, volets roulant manuels, chauffage et eau chaude électriques, climatisation réversible dans le séjour et une chambre, nombreux rangements. Un garage fermé en sous sol complète le bien.
L'ensemble est en bon état général, au sein d'une copropriété bien entretenue et sans travaux à prévoir. Charges de copropriété : 1 776 /an en 2024 Taxe foncière : 1 300 /an
Vous apprécierez son emplacement pratique, face aux 7 Collines, à proximité des commerces, transports, axes principaux, et du futur parc urbain Jacques Chirac de 14 hectares prévu en 2027 qui s'étendra du parc Georges Besse au triangle de la Gare Nimes centre.
Honoraires à la charge du vendeur. Dans une copropriété de 269 lots. Quote-part moyenne du budget prévisionnel 1 776 /an. Aucune procédure n'est en cours. Classe énergie C, Classe climat A Montant estimé des dépenses annuelles d'énergie pour un usage standard : entre 708.00 et 759.00 sur les années 2021, 2022 et 2023 (abonnements compris). Les informations sur les risques auxquels ce bien est exposé sont disponibles sur le site Géorisques : georisques.gouv.fr.
Carte pro. CPI 3002 2017 000 021 663 AC ADC 3002 2023 000 000 334
61 m²
3 098 €
3
2
1
1 (séparé)
1 sur 3
210
Ouest
Oui
1
1
Oui (269 lots)
Consommations énergétiques
Logement économe
124
Logement énergivore (kWhEP/m2/an)
Émissions de gaz à effet de serre
Faible émission de GES
3
Forte émission de GES(kgeqCO2/m2/an)
Contact
Contacter gratuitement à l'aide du formulaire ci-dessous.