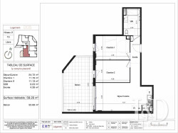
A Castelnau le lez à l'est de Montpellier, dans une petite rue au calme, résidence intimiste de 17 logements bénéficiant de la proximité des commerces et services tout en étant à quelques pas de la ligne 2 du tramway. A l'arrière de la résidence et à l'écart du bruit, vous avez accès à un grand jardin privatif abritant un grand cèdre de 18m, un murier blanc, un figuier et de nombreux frênes. Je vous propose un T3 lumineux de 59m² exposé ouest donnant sur le jardin. La pièce principale de 25m² ouvre sur une large et profonde terrasse de 23m² exposée ouest ! L'appartement comprend 2 chambres et une salle de bain de plus de 6m² avec meuble contemporain, miroir et sèche serviette. La baie coulissante du séjour est équipée de volet roulants électriques. L'accès à la résidence est complètement sécurisée par vigik et visiophone, vous disposez d'un local vélo et d'un stationnement privatif en sous-sol sécurisé. Chauffage individuel électrique. Les commerces et le tramway sont à quelques pas, la place de la comédie est à 15 minutes. Proximité immédiate avec les infrastructures sportives, scolaires et les centres d'affaires de la Metropole de Montpellier. Contactez moi. Carole Ducoin-EI, votre consultante partenaire RSAC de Montpellier N° 832 505 465.
Honoraires à la charge du vendeur. Dans une copropriété de 17 lots. Quote-part moyenne du budget prévisionnel 950 /an. Aucune procédure n'est en cours. DPE vierge. Les informations sur les risques auxquels ce bien est exposé sont disponibles sur le site Géorisques : georisques.gouv.fr.