Honoraires à la charge de l'acquéreur (Prix hors honoraires : 205000 euros).
A découvrir rapidement ! Un super compromis entre maison et appartement.
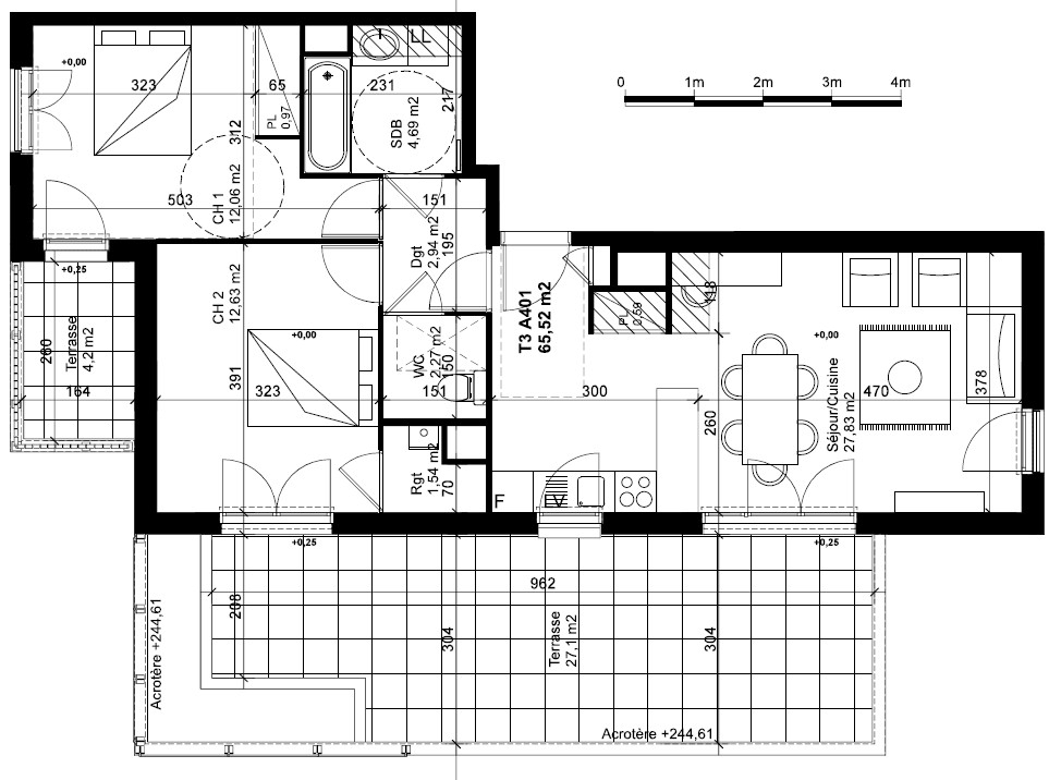
Au sein d'une copropriété récente construite en 2019, découvrez cet appartement T3 de 65 m², situé en rez-de-jardin avec une terrasse et un jardin privatif de 100m2.
L'apparement est idéalement situé à deux pas du parc de la franche verte, dans le village d'Echirolles, dans un environnement privilégié et preservé, au calme et en retrait de la rue et des nuisances sonores. Vous pourrez profiter d'un bel espace extérieur, ensoleillé et verdoyant.
L'appartement se compose d'une grande entrée qui dessert une première chambre,une grande pièce de vie avec cuisine ouverte sur le salon, donnant sur l'extérieur, un wc séparé puis un coin nuit avec une deuxième chambre et une magnifique salle de bain. La cuisine est entièrement équipée et récente, achetée chez Mobalpa.
Une place de parking privative en sous-sol complète ce bien exceptionnel.
Dans une copropriété de 25 lots. Aucune procédure n'est en cours. Classe énergie B, Classe climat C. Montant moyen estimé des dépenses annuelles d'énergie pour un usage standard, établi à partir des prix de l'énergie de l'année 2019 : 376.00 . Date de réalisation du DPE : 15-05-2019. Les informations sur les risques auxquels ce bien est exposé sont disponibles sur le site Géorisques : georisques.gouv.fr.