T3 de charme dans un bel immeuble ancien DIJON REPUBLIQUE
Dijon 21000
0
Honoraires à la charge du vendeur.
DIJON CENTRE - REPUBLIQUE :
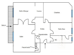
Situé au 2e étage sur 3 d'un joli petit immeuble ancien à quelques pas d'une station de tram, T3 de charme vendu loué.
Il dispose d'une vaste entrée avec penderie desservant un salon-séjour double de 38 m² avec cuisine ouverte équipée, cheminée et balconnets, d'une grande chambre donnant sur cour, d'une salle de douches avec fenêtre et de toilettes séparées.
Côté prestations : chaudière gaz basse température de 2020, fenêtres en bois à l'ancienne équipées de double vitrage, tableau électrique aux normes...
Bail non meublé du 10/04/2024, loyer mensuel 711 et provisions pour charges 40 .
Bien soumis au statut de la copropriété (8 lots principaux), charges annuelles payées par le vendeur 960 , pas de procédure en cours. DPE 2025 : D.
Tel. : 06.81.52.83.68.
Honoraires à la charge du vendeur. Dans une copropriété de 8 lots. Quote-part moyenne du budget prévisionnel 960 /an. Aucune procédure n'est en cours. Classe énergie D, Classe climat D Montant estimé des dépenses annuelles d'énergie pour un usage standard : entre 1050.00 et 1420.00 sur les années 2021, 2022 et 2023 (abonnements compris). Les informations sur les risques auxquels ce bien est exposé sont disponibles sur le site Géorisques : georisques.gouv.fr.
Votre conseiller LAMOUR IMMOBILIER : Agent immobilier - Jean-Sébastien LAMOUR Carte T CPI 21022022000000010 RCP AXA FRANCE IARD
66 m²
3 000 €
2 m²
38 m²
3
1
1
1 (séparé)
2 sur 3
31/03/2026
80.00 € / mois
1900
Sud
Ouest
1 (2 m²)
Oui
Oui (8 lots)
Consommations énergétiques
Logement économe
163
Logement énergivore (kWhEP/m2/an)
Émissions de gaz à effet de serre
Faible émission de GES
35
Forte émission de GES(kgeqCO2/m2/an)
Contact LAMOUR IMMOBILIER
Contacter gratuitement à l'aide du formulaire ci-dessous.