T3 Duplex - 53 m2 avec Jardin - Tassin la Demi Lune
Tassin-la-Demi-Lune 69160
0
Honoraires à la charge du vendeur.
Vente Plateau avec possibilité de créer un T3
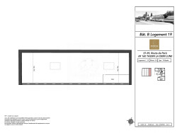
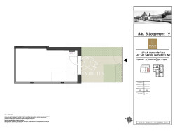
Au sein des dépendances d'une élégante maison bourgeoise datant de 1905 et entièrement rénovée en 2025, découvrez ce plateau brut de 39?m², offrant la possibilité d'aménager un appartement T3 lumineux et fonctionnel.
Le bien est vendu en l'état brut, laissant libre cours à votre imagination pour créer un intérieur à votre image, que ce soit pour un usage résidentiel ou professionnel.
Jardin privatif et place de parking.
Aucune procédure en cours.
Prix HAI :163 100
Les informations sur les risques liés à ce bien sont disponibles sur le site : www.georisques.gouv.fr
Pour toute information ou pour organiser une visite, contactez votre agence Cesar & Brutus.
Honoraires à la charge du vendeur. Dans une copropriété de 18 lots. Aucune procédure n'est en cours. DPE vierge. Les informations sur les risques auxquels ce bien est exposé sont disponibles sur le site Géorisques : georisques.gouv.fr.