Petite résidence - travaux en cours et visitable, idéalement située : A pied de la gare et du centre mais au calme, résidentiel et boisé 10min RENNES centre par la Gare. Faibles charges de copropriété, frais de notaire réduits. FIn de travaux, visitable.
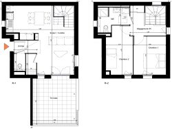
Spacieux T3 duplex au 1er et 2è (dernier) étage : Séjour donnant sur grande terrasse privative, wc. Deux chambres, salle d'eau wc à l'étage. Deux places de parking couvertes. Expo sud.
Nous consulter.
Honoraires à la charge du vendeur. Non soumis au DPE. Les informations sur les risques auxquels ce bien est exposé sont disponibles sur le site Géorisques : georisques.gouv.fr.
Votre conseiller MON BIEN A LA MER : Gérant - .fr MON BIEN A LA MER Carte T CPI 2201 2018 000 025 040 RCP ACM IARD B1 7025278
60.62 m²
4 009 €
3
2
1
1 (séparé)
2 sur 2
2
1
Contact mon bien à la mer
Contacter gratuitement à l'aide du formulaire ci-dessous.