T3 Duplex de 88m² à rénover entierement au 4ème et dernier ?
Lyon 69006
0
Honoraires à la charge du vendeur.
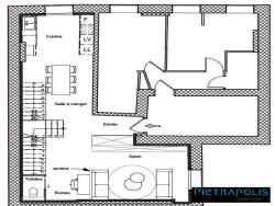
Pietrapolis vous présente dans un quartier recherché du 6ème arrondissement, un projet à réaliser pour un Dupex T3 d'environ 88m², 133m² au sol, situé au 4ème et dernier étage sans ascenseur.
Cet ensemble comprend un T2 lumineux d'environ 51m² avec salle d'eau et toilettes indépendants et une partie des combles a aménager de 36m² avec 45m² au sol.
Très beau potentiel, beaucoup de charme avec la possibilité d'aménager les combles, comme sur le plan annexé en annonce, avec 2 chambres et 2 salles d'eau.
Autre possibilité faire de T2 en duplex pour un investissement locatif.
Véritable terrain de jeu pour les amateurs de rénovation et de décoration intérieure. A visiter rapidement !! Contactez Christèle SPACCIALBELLI 06.85.97.20.81 - c.spaccialbelli@pietrapolis.fr
Honoraires à la charge du vendeur. Dans une copropriété de 10 lots. Aucune procédure n'est en cours. Classe énergie G, Classe climat C Logement à consommation énergétique excessive. Montant moyen estimé des dépenses annuelles d'énergie pour un usage standard, établi à partir des prix de l'énergie de l'année 2021 : entre 1450.00 et 1990.00 . Les informations sur les risques auxquels ce bien est exposé sont disponibles sur le site Géorisques : georisques.gouv.fr.