L'exception sur l'Ile d'Oléron : Plein front de Mer, face au soleil levant au 8 bd de la Plage à SAINT TROJAN.
Une restauration d'un bâtiment historique de grand standing : Seulement 22 appartements et 11 Maisons, dans un domaine paysager privé avec piscine chauffée. Frais de notaire réduits.
Prestations de qualité, chauffe-eau thermodynamiques+panneaux rayonnants, ascenseur, parkings, caves, grande hauteur sous plafonds, parquets, domotique, placards terminés, carrelage Porcelanosa, appartements traversants : tout a été pensé pour votre confort.
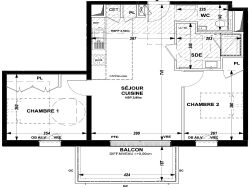
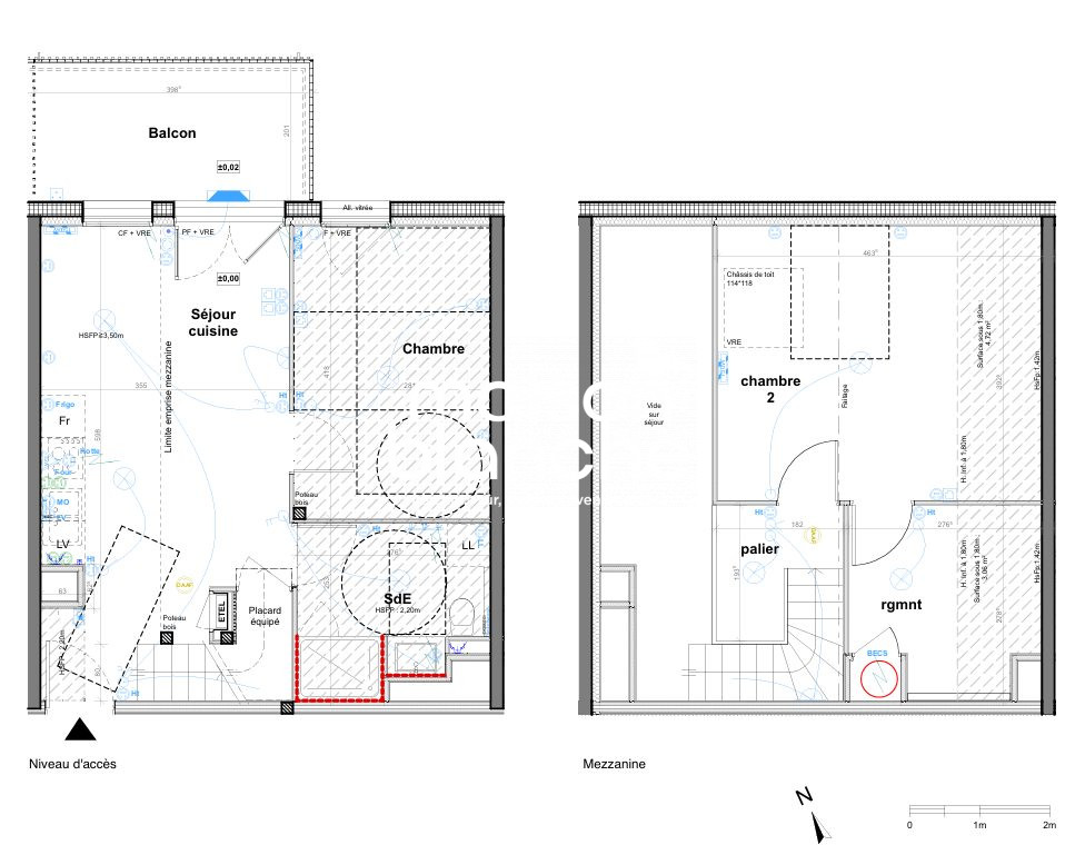
T3 au 3è et dernier étage exposé sud de 59m2 comprenant : - séjour 27,6m2 - deux chambres 12,7-10,6m2 - salle d'eau douche à l'italienne - wc séparés - terrasse 7,9m2 - Parking et cave inclus.
Nous consulter
Livré fin 2027.
Nous consulter
Honoraires à la charge du vendeur. Non soumis au DPE. Les informations sur les risques auxquels ce bien est exposé sont disponibles sur le site Géorisques : georisques.gouv.fr.
Votre conseiller MON BIEN A LA MER : Gérant - .fr MON BIEN A LA MER Carte T CPI 2201 2018 000 025 040 RCP ACM IARD B1 7025278
59 m²
6 085 €
28 m²
3
2
1
1 (séparé)
3 sur 3
1
1
Contact mon bien à la mer
Contacter gratuitement à l'aide du formulaire ci-dessous.