La part des honoraires pour la réalisation de létat des lieux de ce bien est de 100 euros.
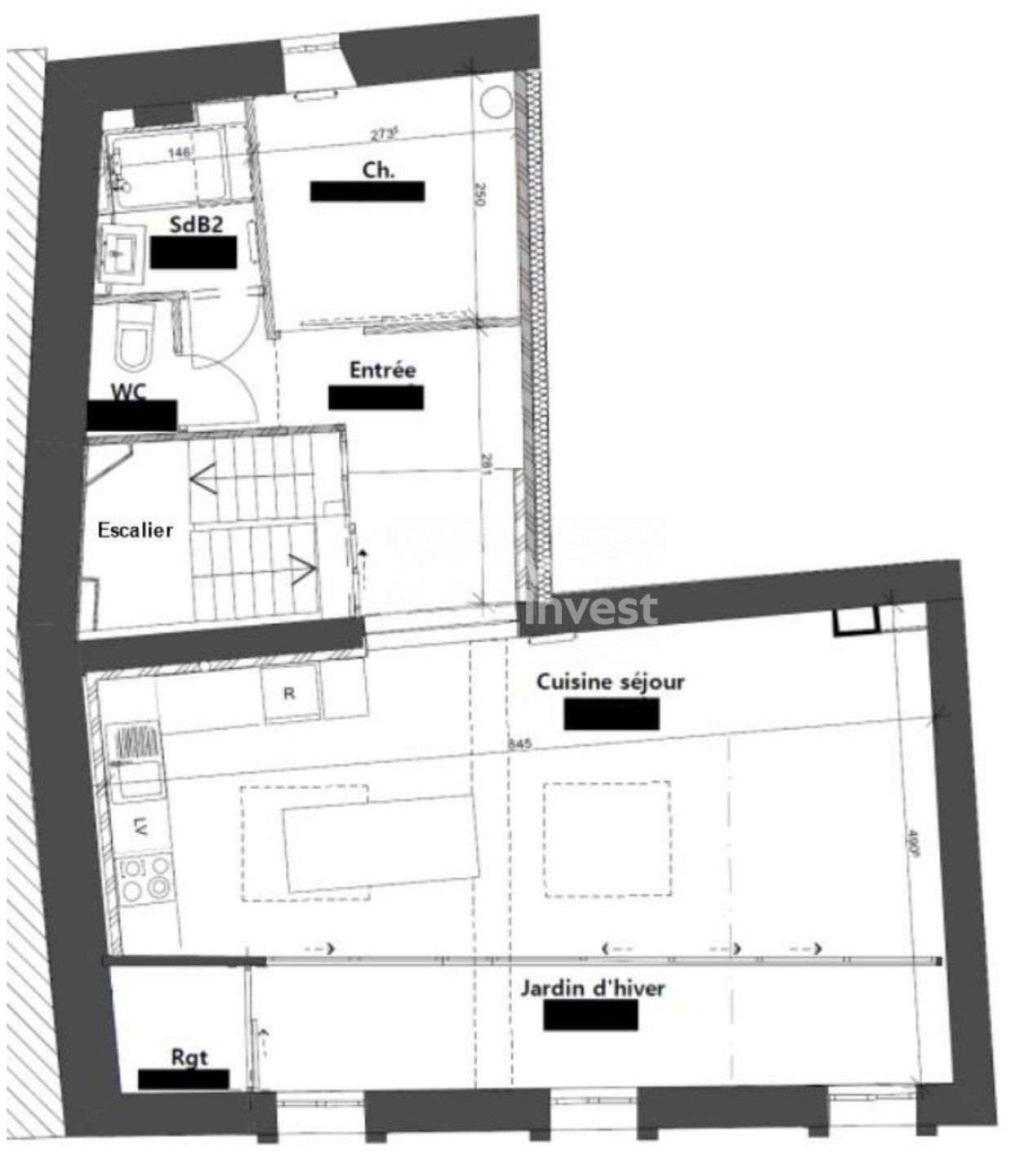
T3 en plein centre de la Tour du pin. au deuxième étage sans ascenseur. Cuisine équipée/salon, WC, salle d'eau et deux chambres. Disponible novembre. Honoraires 350e + 100e EDL. Contactez Dohm immobilier - 06 20 08 51 67 Lucile Cette annonce vous est proposée par Lossy Lucile - - NoRSAC: , Enregistré à de Les informations sur les risques auxquels le bien est exposé sont disponibles sur le site Géorisques : www.georisques.gouv.fr
65 m²
3
2
1
1
2
450 %
40 € / mois
1948
Consommations énergétiques
Logement économe
167
Logement énergivore (kWhEP/m2/an)
Émissions de gaz à effet de serre
Faible émission de GES
34
Forte émission de GES(kgeqCO2/m2/an)
Contact LOSSY Lucile
Contacter gratuitement à l'aide du formulaire ci-dessous.