Jolie résidence neuve achevée, en frais de notaire réduits, prête à habiter. 5 min en voiture de la Gare de CHATEAUBOURG, entre 3 et 7 des commerces, école, collège.
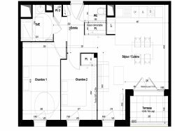
Ce T3 est situé en rez de chaussée surélevé, donnant sur les jardins, en arrière de résidence, calme : - Séjour/entrée 26m2 donnant sur une loggia de 4,12m2 - Deux chambres 12,35-9,49m2 - Salle d'eau douche à l'italienne meuble vasque sèche serviette - wc séparé - Placards - Parking sous sol inclus.
Nous Consulter
Honoraires à la charge du vendeur. Classe énergie C, Classe climat C Montant estimé des dépenses annuelles d'énergie pour un usage standard : entre 474.00 et 651.00 sur les années 2021, 2022 et 2023 (abonnements compris). Les informations sur les risques auxquels ce bien est exposé sont disponibles sur le site Géorisques : georisques.gouv.fr.
Votre conseiller MON BIEN A LA MER : Gérant - .fr MON BIEN A LA MER Carte T CPI 2201 2018 000 025 040 RCP ACM IARD B1 7025278
60.46 m²
3 573 €
26 m²
3
2
1
1 (séparé)
Oui
1
1
Oui
Consommations énergétiques
Logement économe
65
Logement énergivore (kWhEP/m2/an)
Émissions de gaz à effet de serre
Faible émission de GES
13
Forte émission de GES(kgeqCO2/m2/an)
Contact mon bien à la mer
Contacter gratuitement à l'aide du formulaire ci-dessous.