T3 lumineux avec grand extérieur et garage Castelnau-le-Le
Castelnau-le-Lez 34170
0
Honoraires à la charge du vendeur.
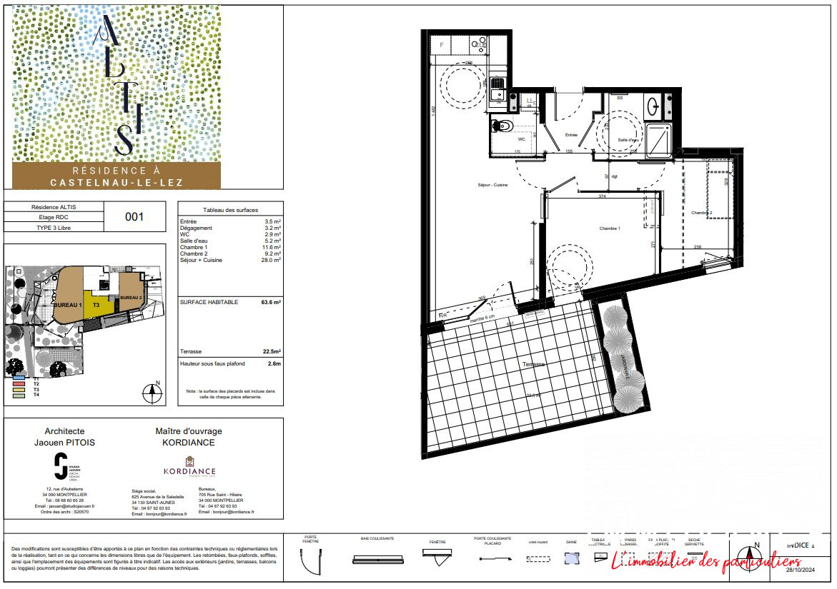
À Castelnau-le-Lez, avenue de la Pompignane, découvrez cet appartement T3 de 82 m2 situé en rez-de-chaussée surélevé d'une résidence récente, livrée en décembre 2.0.2.3. Disponible immédiatement, il offre un cadre de vie idéal à deux pas de Montpellier, dans un environnement calme, verdoyant et parfaitement desservi. Ce bel appartement se distingue par sa luminosité et ses volumes agréables. Il comprend un vaste séjour avec cuisine ouverte, deux chambres avec placards intégrés, une salle d'eau moderne, conforme aux normes PMR, ainsi qu'un WC indépendant. L'ensemble s'ouvre sur une spacieuse terrasse de 43 m2 exposée plein sud, offrant un véritable prolongement de l'espace de vie vers l'extérieur. Le bien est vendu avec un garage fermé en sous-sol. La résidence, à taille humaine, conjugue confort, élégance et performance énergétique. Elle bénéficie de prestations de qualité : baies vitrées en aluminium à rupture de pont thermique, volets roulants électriques, isolation phonique renforcée, carrelage et équipements sanitaires haut de gamme signés Porcelanosa. L'accès est sécurisé par digicode, vidéophone et badge Vigik. Castelnau-le-Lez séduit par son atmosphère conviviale et sa qualité de vie, entre mer, nature et centre-ville animé. Les rives du Lez, les parcs et les bois à proximité sont autant d'invitations à la promenade ou au running. Un bien rare, idéal pour un projet de résidence principale ou un investissement patrimonial sécurisé.
82 m²
4 268 €
43 m²
3
2
1
1
2022
Sud
1 (43 m²)
1
Oui
1
Oui
Oui (45 lots)
Consommations énergétiques
Logement économe
40
Logement énergivore (kWhEP/m2/an)
Émissions de gaz à effet de serre
Faible émission de GES
5
Forte émission de GES(kgeqCO2/m2/an)
Contact Prodeom Immobilier
Contacter gratuitement à l'aide du formulaire ci-dessous.