Honoraires à la charge de l'acquéreur (Prix hors honoraires : 295000 euros).
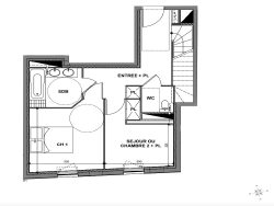
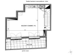
Le bien consiste en un appartement T3 en Duplex de 69 m² en tout au 3e et dernier etage de la residence. Il y a 2 chambres et un Balcon de 12 m². Le bien dispose de plusieurs rangement par ailleurs. La residence se trouve au coeur des hauteurs du Mont Duplan.
La salle de bain et les toilettes sont independantes. Le balcon et le grand sejour se trouvent à l etage du duplex.
Vous avez le centre-ville et donc tout a cote, sans son lot d agitation, juste les commerces et les ecoles et colleges a proximite.
N'hesitez pas a nous contacter au 0664639783 ou au 0466676948 ou nous écrire directement sur notre site internet imonah.fr pour obtenir de plus amples informations.
Dans une copropriété de 24 lots. Aucune procédure n'est en cours. Non soumis au DPE. Les informations sur les risques auxquels ce bien est exposé sont disponibles sur le site Géorisques : georisques.gouv.fr.
Duplex
68.98 m²
4 277 €
12 m²
32 m²
3
2
1
1 (séparé)
3 sur 3
2025
Est
1 (12 m²)
1
Oui (24 lots)
Contact Imonah
Contacter gratuitement à l'aide du formulaire ci-dessous.