ANOVA IMMOBILIER vous propose à prix promoteur Le programme L'envol Rue Louis Blériot 68440 HABSHEIM
Date de livraison prévisionnelle : 2ème trimestre 2025 Date d'actabilité : 2023 Fiscalité : Pinel /Résidence principale Nature du programme : Collectif
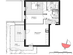
Appartement T3 RDJ avec hall d'entrée, un séjour / cuisine de 25,83m2, 2 chambres, une salle de bains, un eterasse de 8,61m2 et un jardin de 29,23m2.
Situation : Programme immobilier neuf disponible pour votre résidence principale ou pour l'investissement immobilier Dans un quartier résidentiel, les appartements vont du T2 a u T4 avec stationnement. Vous disposerez d'un séjour avec une cuisine ouverte. Un jardin agrémente les lots du RDC. Tous les lots proposent un balcon.
Proximité: Proche de Rixheim et Mulhouse Gare Aire de covoiturage Parc naturel de Mulhouse Ecole et collège Commerces
Pour plus de renseignements, Pour obtenir les plans et les lots disponibles, Contactez nous. ANOVA IMMOBILIER 07 688 50 100
Honoraires à la charge du vendeur. Dans une copropriété de 17 lots. Aucune procédure n'est en cours. DPE vierge. Les informations sur les risques auxquels ce bien est exposé sont disponibles sur le site Géorisques : georisques.gouv.fr.
Carte pro. CPI67012018000023425
64.21 m²
4 002 €
3
2025
2
1
Oui (17 lots)
Contact Anova
Contacter gratuitement à l'aide du formulaire ci-dessous.