Dans le cadre de cette transaction vendeurs et acquéreurs nous ont fait confiance.
ALORS POURQUOI PAS VOUS ?
Vous avez un projet d'ACHAT ? Confiez-nous vos critères et soyez les premiers informés de nos nouveautés ! Vous avez un projet de VENTE ? Nous recherchons des biens pour répondre aux demandes de nos clients.
Nous saurons vous accompagner avec PROFESSIONALISME, PERFORMANCE et INTEGRITE.
Concrétisons ensemble vos projets immobiliers.
Rencontrons-nous !
Retrouvez-nous à l'agence de Savenay ou découvrez sur notre site internet l'ensemble de nos biens en vente en Loire-Atlantique. Vos 7 agences de proximité pour la vente et la location : SAVENAY, CORDEMAIS, MALVILLE, SAINT-ETIENNE-DE-MONTLUC, NORT-SUR-ERDRE, SAFFRÉ, et BLAIN.
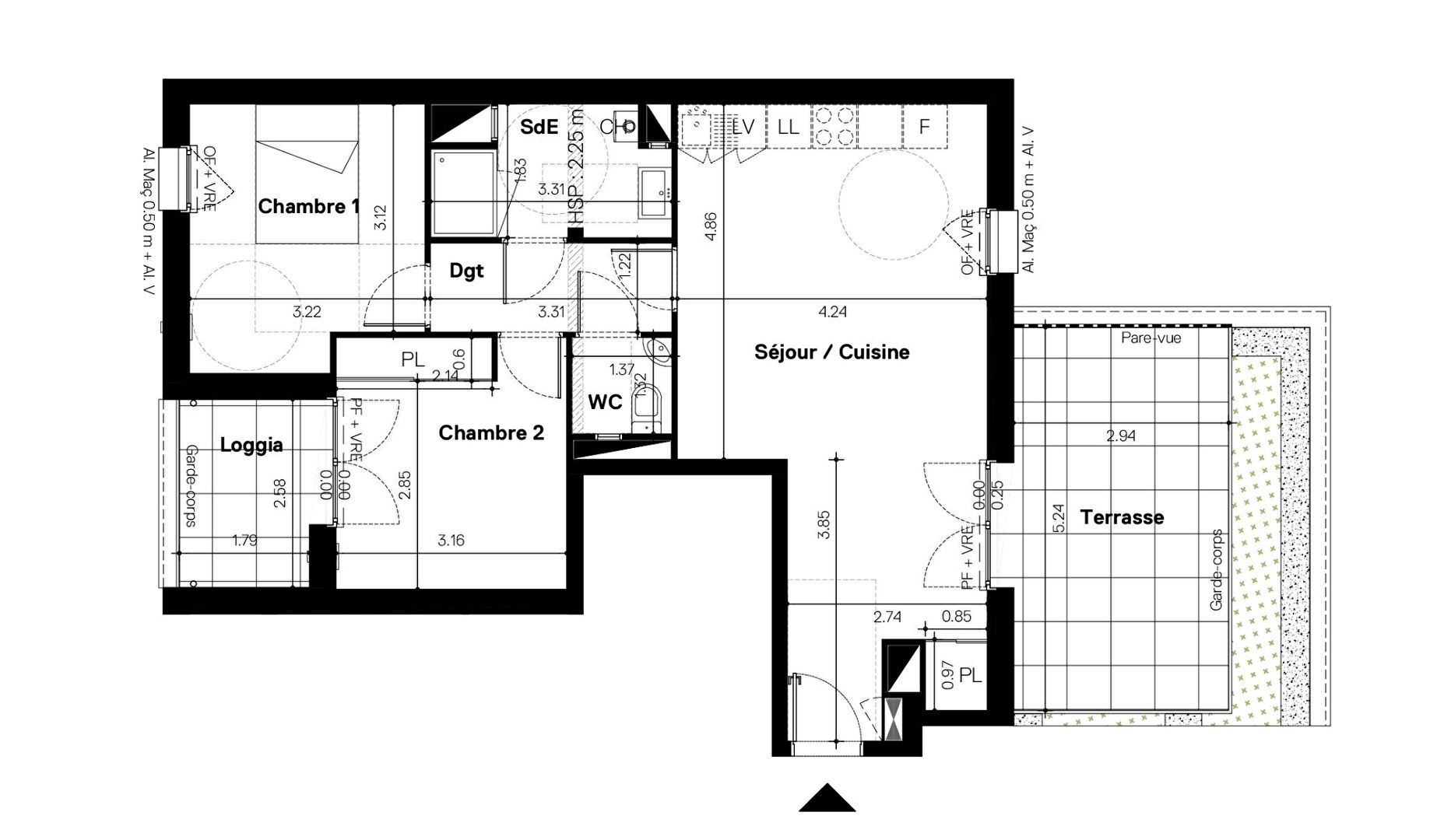
''''''''''''''''''''''''''''''''''''''''''''''''''''''''''''''''''''''''''''''''''''''''''''''''''''''''Exclusivité ESTUAIRE Immobilier : Quartier Dalby, à proximité immédiate des commerces services et transports (bus lignes 11 et 12), situé au 4ème et dernier étage avec ascenseur d'une copropriété de bon standing de 2022 parfaitement entretenue à l'accès sécurisé , découvrez cet impeccable T.3 traversant de 64 m² habitable environ (61,23 m² carrez). Agréable à vivre et lumineux, il se compose d'un séjour cathédrale ouvert sur une cuisine équipée/aménagée donnant sur une terrasse exposée sud, de 2 chambres dont une donnant sur une seconde terrasse, d'une salle d'eau et d'un WC indépendant. Un garage boxé en sous-sol complète les prestations. Cet appartement de qualité équipé d'un visiophone de volets roulants motorisés et d'un mode de chauffage au gaz individuel, constitue une opportunité rare sur le marché. Charges courantes 1650 /an - Copropriété de 72 lots principaux - aucune procédure en cours. Votre conseiller : Christophe VOYER
Découvrez sur notre site internet l'ensemble de nos biens en vente en Loire-Atlantique. Vos 7 agences de proximité pour la vente et la location : SAVENAY, CORDEMAIS, MALVILLE, SAINT-ETIENNE-DE-MONTLUC, NORT-SUR-ERDRE, SAFFRÉ, et BLAIN.
Honoraires inclus de 4.5% TTC à la charge de l'acquéreur. Prix hors honoraires 300 000 . Dans une copropriété de 2 lots. Quote-part moyenne du budget prévisionnel 1 262 /an. Aucune procédure n'est en cours. Classe énergie C, Classe climat C Montant estimé des dépenses annuelles d'énergie pour un usage standard : entre 660.00 et 930.00 sur les années 2021, 2022 et 2023 (abonnements compris). Les informations sur les risques auxquels ce bien est exposé sont disponibles sur le site Géorisques : georisques.gouv.fr.
Carte pro. 44012019000041313
64 m²
4 898 €
6 m²
32 m²
3
2
1
1 (séparé)
4 sur 4
4.5 %
100.00 € / mois
2022
Ouest
1 (6 m²)
Oui
1
1
Oui (2 lots)
Consommations énergétiques
Logement économe
95
Logement énergivore (kWhEP/m2/an)
Émissions de gaz à effet de serre
Faible émission de GES
18
Forte émission de GES(kgeqCO2/m2/an)
Contact Christophe VOYER
Contacter gratuitement à l'aide du formulaire ci-dessous.