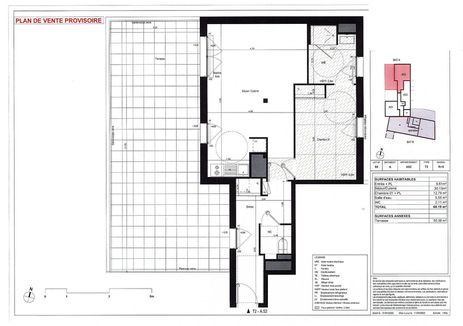
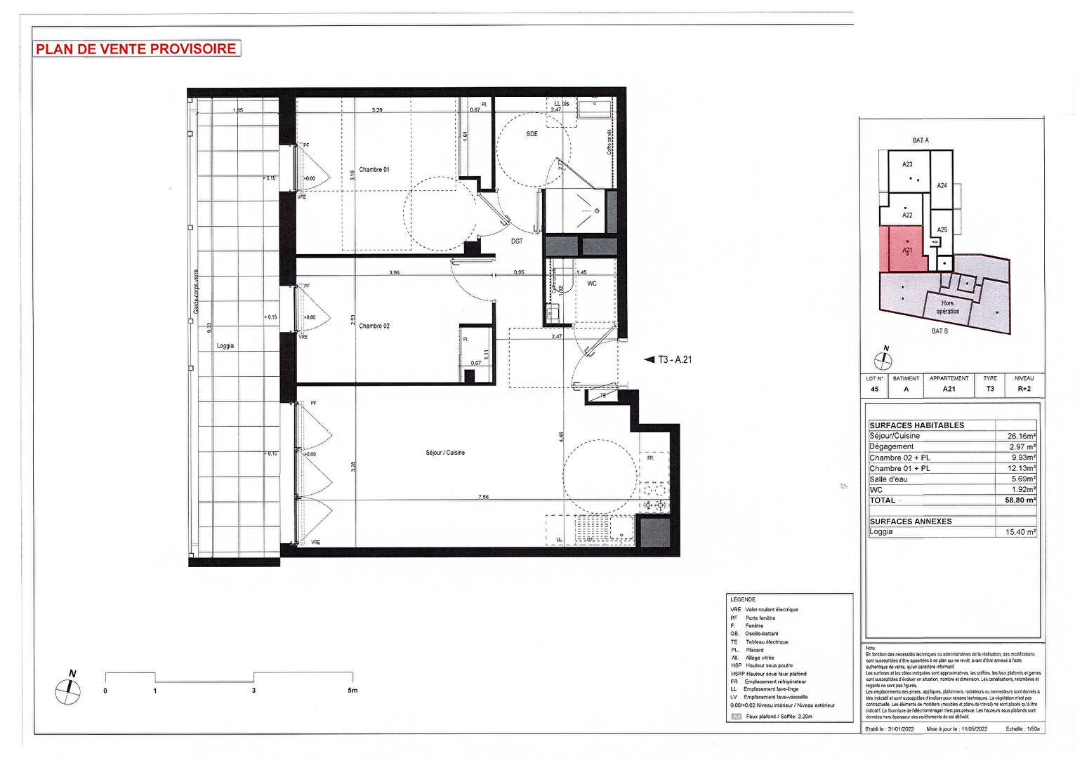
Aurélie Hamelin vous propose ce bien :
En exclusité, quartier Jeanne d'Arc, à l'angle de la rue de Danton et du Boulevard de Vitré, se situe ce superbe T3 en rooftop de 78m2, un bien rare qui conjugue lumière, volumes généreux et prestations haut de gamme. La résidence récente et sécurisée dispose d'un ascenseur pour un confort au quotidien.
Dès l'entrée, un placard agencé, réalisé sur-mesure avec une double penderie et des rangements de qualité, donne le ton. Ici, tout a été pensé avec soin. La pièce de vie, baignée de lumière grâce à sa double exposition SE-NO, s'ouvre sur 2 grandes terrasses, créant une continuité naturelle entre l'intérieur et l'extérieur. La cuisine, parfaitement équipée et aménagée offre un grand réfrigérateur et un congélateur séparé, des rangements généreux et une implantation aussi fonctionnelle qu'esthétique. La salle d'eau spacieuse est dotée d'une douche italienne. Les 2 chambres, quant à elles, disposent chacune d'un accès extérieur sur terrasse prolongeant les volumes et permettant à chacun de profiter d'un espace privé supplémentaire.
L'appartement bénéficie au total de 53m2 de terrasses réparties en 3 espaces distincts, dont 2 accessibles depuis la pièce de vie. Elles offrent à ce roof top des zones idéales pour recevoir, se détendre au soleil ou simplement savourer de la vue ou tranquillité.
Pour parfaire le tout, le bien comprend 2 stationnements en sous-sol, dont un box fermé équipé en électricité; un atout rare et recherché en ville. L'emplacement enfin est idéal: à proximité immédiate de 2 stations de métro et parfaitement desservi par les bus , proche des écoles, services, commerces et du pôle universitaire de Beaulieu.
Venez vite découvrir ce roof top, véritable pépite rennaise, il ne ressemble à aucun autre !nLes informations sur les risques auxquels ce bien est exposé sont disponibles sur le site Géorisques : www.georisques.gouv.fr
78 m²
4 227 €
3
2
5 sur 5
2015
Équipée
Oui
Consommations énergétiques
Logement économe
102
Logement énergivore (kWhEP/m2/an)
Émissions de gaz à effet de serre
Faible émission de GES
20
Forte émission de GES(kgeqCO2/m2/an)
Contact Iad France - Aurélie HAMELIN
Contacter gratuitement à l'aide du formulaire ci-dessous.