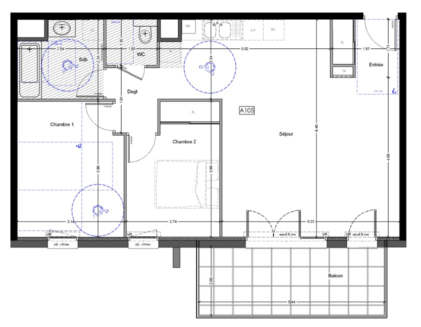
NOUVEAUTES Venez découvrir ce magnifique T3 situé au pied des pistes, dans une résidence de tourisme haut de gamme proposant des équipements de prestige tels qu'une piscine et un spa. DEMEURES ET COLLECTIONS vous propose ce bien qui mélange harmonieusement les codes de la décoration typiquement montagnarde avec un univers contemporain pour créer un espace de vie à la fois chaleureux et confortable. Cet appartement est parfait pour les investisseurs cherchant un placement sûr, avec un bail commercial et six semaines d'occupation propriétaire garanties. Les deux chambres avec salle de bains, la salle à manger séjour et la cuisine sont autant d'espaces aménagés avec soin pour votre confort. De plus, cet appartement est vendu avec une cave privative, un casier à skis et une place de parking couverte. N'attendez plus pour venir visiter ce joyau de la montagne, offrant une vue imprenable sur les pistes. Ce bien est à découvrir rapidement, alors contactez-nous dès maintenant pour en savoir plus !
Honoraires à la charge du vendeur. Dans une copropriété de 170 lots. Quote-part moyenne du budget prévisionnel 1 /an. Aucune procédure n'est en cours. Classe énergie E, Classe climat B Montant estimé des dépenses annuelles d'énergie pour un usage standard : entre 1110.00 et 1540.00 sur les années 2021, 2022 et 2023 (abonnements compris). Les informations sur les risques auxquels ce bien est exposé sont disponibles sur le site Géorisques : georisques.gouv.fr.