À VENDRE Appartement T3 traversant à Lyon 8, limite Lyon 7
Lyon 8, à la limite du 7ème arrondissement Secteur Route de Vienne / Avenue Berthelot, au pied du tram (Arrêt Route de Vienne).
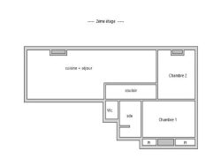
Venez découvrir ce T3 de 59,35 m², situé au 2ème étage avec ascenseur d'une petite copropriété bien entretenue (gérée par Foncia), à deux pas des commodités, des transports (tramway), et à proximité immédiate de Jean Macé.
Caractéristiques principales : Surface : 59,35 m² Séjour spacieux de 25 m² 2 chambres WC séparé Traversant Est-Ouest : lumineux, vue dégagée Double vitrage PVC 2ème étage / 5 avec ascenseur Chauffage individuel gaz Cave en sous-sol Travaux à prévoir : idéal pour personnaliser selon vos goûts
Informations complémentaires : Prix : 199 000 EUR FAI Charges de copropriété : 114 EUR / mois (faibles charges) Taxe foncière : 860EUR Bien libre de toute occupation
On aime : Emplacement stratégique, limite Lyon 7, idéal pour habiter ou investir Proximité tram, bus, commerces, écoles Bonne répartition des volumes Belle opportunité de rénovation et valorisation
Contactez-nous pour organiser une visite et découvrir le potentiel de cet appartement traversant, au coeur d'un quartier dynamique et en pleine évolution.
Honoraires à la charge du vendeur. Dans une copropriété de 12 lots. Aucune procédure n'est en cours. Classe énergie C, Classe climat C Montant moyen estimé des dépenses annuelles d'énergie pour un usage standard, établi à partir des prix de l'énergie de l'année 2021 : entre 657.00 et 889.00 . Les informations sur les risques auxquels ce bien est exposé sont disponibles sur le site Géorisques : georisques.gouv.fr.