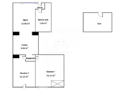
VENDU LOUE - A proximité de l'avenue Roger Salengro et à 5 min à pied de l'arrêt de Tramway T6 'ROGER PLANCHON', au rez-de-chaussée d'un immeuble des années 30, venez découvrir ce T3 de 61,04 m² composé d'une entrée, une pièce de vie de plus de 23 m² avec cuisine US équipée, deux belles chambres dont une avec placard et une salle d'eau avec WC. Un petit espace terrasse peut-être aménagé côté chambre dans la cour intérieure. Une grande cave en sous-sol complète le bien. L'appartement est traversant Nord/Sud ce qui lui assure une belle luminosité. Il bénéficie également de la climatisation réversible.
Actuellement Loué 870 mensuel hors charges, ce bien constitue un excellent investissement locatif (environ 6,4% de rentabilité brute) ! Fin de bail : Décembre 2026 Prix de vente du bien : 163 500 honoraires d'agence inclus
Honoraires à la charge du vendeur. DPE (D) GES (B) Appartement soumis au régime de la copropriété. Pas de procédure en cours.
Charges mensuelles : 86 Les informations sur les risques auxquels ce bien est exposé sont disponibles sur le site Géorisques : www.georisques.gouv.fr
Honoraires à la charge du vendeur. Dans une copropriété de 39 lots. Quote-part moyenne du budget prévisionnel 1 036 /an. Aucune procédure n'est en cours. Classe énergie D, Classe climat B. Les informations sur les risques auxquels ce bien est exposé sont disponibles sur le site Géorisques : georisques.gouv.fr.