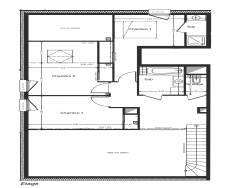
SEYNOD 74600 - Très bonne situation géographique, Seynod-Annecy, Appartement T4 duplex de 88m2 avec balcon. L'appartement est composé au rdc d'une grande entrée avec placard, un WC invité avec lave-main, une cuisine équipée ouverte sur le séjour salon-salle à manger avec accès au balcon de 18,75m2 avec un cellier. A l'étage : trois chambres avec placards intégrés et une avec salle de douche, une salle de bain, un WC séparé. Matesa Immobilier, agence immobilière, vente et achat appartement Seynod 74600. 'Les informations sur les risques auxquels ce bien est exposé sont disponibles sur le site Géorisques http://www.georisques.gouv.fr'.
88.16 m²
5 774 €
4
3
1
1
2
2
1
Contact Matesa Immobilier
Contacter gratuitement à l'aide du formulaire ci-dessous.