NOVEO IMMO LYON vous présente en exclusivité !
RESIDENCE NEUVE à LYON 3 ! Appartement à vendre ? 4P- 103m2
Secteur : Lyon Part-dieu, Métro B, Tram T3 et T6, Bus et Pistes cyclables.
Vous apprécierez le quartier iconique de la Part-Dieu où tout se fait à pied. Transports en commun en nombre (tramways, bus, métro), gare TGV, Centre Commercial de La Part Dieu et ses 200 boutiques?
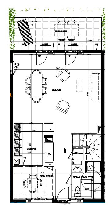
Découvrez cet appartement lumineux en double exposition, de 4 Pièces et de 103.05m2 (carrez).
Il est composé de 3 belles chambres, d'un immense séjour cuisine, d'une salle de bain entièrement équipée (meuble vasque, baignoire, sèche serviette), ainsi que d'un WC séparé (suspendu).
Une sublime terrasse de plus de 50 m2 complète ce bien.
Ce bien dispose de belles prestations puisqu'il est équipé de : brise soleil orientables électriques, visiophone, domotique (lumière et chauffage connectés et pilotable à distance), carrelage 60x60 cm dans les pièces de vie, parquet contrecollé dans les chambres, etc?
Ce bien est en cours de construction, et ne nécessitera donc aucuns travaux à réaliser.
LA COPROPRIETE
Résidence BBC RE 2020. Isolation phonique et thermique selon la dernière réglementation en vigueur. Le bien est sous garantie décennale (10 ans) et biennale (2 ans) pour les éléments d'équipement. Nous contacter pour la livraison.
DPE : en cours de réalisation par le promoteur. Bien en copropriété, Nb de lots : 38
La copropriété est en cours de création, elle n'a donc pas de procédure ni de litige en cours.
Charges annuelles courantes en cours d'estimation par le syndic provisoire.
PRIX ? 785 000€
Honoraires à charge du vendeur
Possibilité de parking en supplément.
Bien éligible au Prêt à Taux zéro. D'autres lots sont disponibles dans cette résidence. Nous contacter pour plus de renseignements.
+ d'informations sur RDV auprès de M. ROUERS Xavier au O763 3O7O 34
Pour mieux vous servir, toute visite est obligatoirement précédée d'un rdv en agence ou rdv en visio. Aucun document n'est envoyé par mail. Merci de votre compréhension.
INFORMATIONS LÉGALES :
Le barème des honoraires agence, et les mentions légales complètes sont disponibles sur notre site internet dans la rubrique /nos honoraires/.
Novéo Immo Lyon (SAS au capital de 10 000 €). Annonce relative au mandat de vente N°10. Transactions immobilières sans perception de fonds - SIRET : 910 642 263 00016 RCS de Strasbourg APE 7022Z
La présente annonce immobilière a été rédigée sous la responsabilité éditoriale de M. ROUERS Xavier, Agent Commercial mandataire en immobilier immatriculé au Registre Spécial des Agents Immobilier immatriculé au Tribunal de Commerce de LYON sous le numéro 905 202 560.
Résidence en construction, visuels d'illustration, libre de droits.
103 m²
7 621 €
4
3
1
Oui
Consommations énergétiques
Logement économe
51
Logement énergivore (kWhEP/m2/an)
Émissions de gaz à effet de serre
Faible émission de GES
6
Forte émission de GES(kgeqCO2/m2/an)
Contact Gabriella DESSEZ
Contacter gratuitement à l'aide du formulaire ci-dessous.