Situé sur la Place Gambetta, en plein c?ur du quartier administratif de Caen, le bâtiment Le Gambetta, réalisé en 1932 par l'architecte Pierre Chirol et inscrit aux Monuments Historiques depuis 2010, fait aujourd'hui l'objet d'une rénovation complète.
Le deuxième étage accueillera 23 appartements du T1 au T4, dont 3 avec toit-terrasse offrant une vue unique sur la ville.
Ces logements sont proposés dans le cadre d'une VIR (Vente d'Immeuble à Rénover), un dispositif proche de la VEFA : vous achetez votre bien dès aujourd'hui et financez au fur et à mesure de l'avancement des travaux, qui sont intégralement réalisés par le promoteur et couverts par les garanties légales.
Vous profitez ainsi du confort du neuf tout en valorisant un bâtiment historique de Caen.
La livraison est prévue au 4e trimestre 2027.
Tous les logements disposent d'un chauffage électrique individuel.
Située en hypercentre, la résidence offre un cadre de vie privilégié : commerces, services et transports à proximité immédiate.
Un local à vélos est également mis à disposition des résidents.
Nous vous présentons :
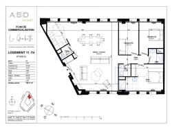
T4 - Lot 11
Surface habitable : 106,13 m²
Composé de :
1 séjour / cuisine
1 cellier
3 chambres
Salle de bain
1 WC
Prix : 615 554 euros HAI
Honoraires à la charge du vendeur
Contact direct :
Malick DIENG
06 31 45 39 55
mdieng@uni-immobilier.fr
Cette annonce a été rédigée par l'agence immobilière UNI (SIRET : 908 382 542 00011) et par EI Malick DIENG, mandataire indépendant en immobilier, agent commercial de l'agence UNI (Immatriculation au RCS : 949 706 139 R.C.S CAEN)
106 m²
5 807 €
58 m²
4
3
2
1
Oui
Contact Malick DIENG
Contacter gratuitement à l'aide du formulaire ci-dessous.