T4/5 en ROOFTOP SANS VIS A VIS avec terrasse - Garage double
Lyon 69007
0
Honoraires à la charge du vendeur.
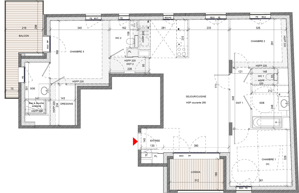
RETOUR A LA VENTE quartier Debourg Au 6è et dernier étage, calme et sans aucun vis-à-vis, ce bien propose : - Une superficie de 109m² (dont 103,09m² Carrez) - Un spacieux séjour lumineux avec cuisine ouverte, 3 grandes chambres (11 à 14 m²) dont une parentale avec sa salle d'eau, 1 salle de bain, WC séparés, buanderie et de nombreux rangements. - Une terrasse de 27m² triplement exposée - Une véranda de 6m² - Climatisation, volets électriques et prestations de qualité - Garage double en sus
Profitez dans ce quartier de : - Accès direct aux gares Part Dieu / Perrache par T1, T6 et métro B - Accès rapide aux axes routiers (périphérique, A7) - Emplois (Framatome, Sanofi, Biodistrict de Gerland...), écoles (Cité Internationale, EM Lyon, ENS) - Nature avec le Parc de Gerland à 10 minutes et commerces
La copropriété met à disposition un grand jardin avec terrain de pétanque et compost. Des places extérieures collectives, local moto et local vélo sont également accessibles.
Ne tardez pas à venir visiter cette opportunité !
Honoraires à la charge du vendeur. Dans une copropriété de 80 lots. Aucune procédure n'est en cours. Classe énergie D, Classe climat D Montant estimé des dépenses annuelles d'énergie pour un usage standard : entre 1580.00 et 2140.00 sur les années 2021, 2022 et 2023 (abonnements compris). Les informations sur les risques auxquels ce bien est exposé sont disponibles sur le site Géorisques : georisques.gouv.fr.