Honoraires à la charge de l'acquéreur (Prix hors honoraires : 130000 euros).
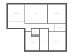
Venez découvrir ce T4 de 92,51m² Carrez situé au 3ème et dernier étage d'une résidence rénovée (ravalement avec isolation, fenêtres avec volets roulants et chauffage au sol).
A proximité des commerces et transports en commun, il se compose d'une entrée vous desservant le séjour, une cuisine, 3 chambres de plus de 11m², un dressing, une salle d'eau et un W.C. Une place de parking et une cave complètent ce bien.
Pour en savoir plus ou visiter, contactez votre conseiller via les coordonnées se trouvant en dernière photo de l'annonce.
Honoraires inclus de 4.62% TTC à la charge de l'acquéreur. Prix hors honoraires 130 000 . Dans une copropriété de 1090 lots. Quote-part moyenne du budget prévisionnel 3 180 /an. Aucune procédure n'est en cours. Classe énergie C, Classe climat A Montant estimé des dépenses annuelles d'énergie pour un usage standard : entre 1000.00 et 1400.00 sur les années 2021, 2022 et 2023 (abonnements compris). Les informations sur les risques auxquels ce bien est exposé sont disponibles sur le site Géorisques : georisques.gouv.fr.