L'agence 'MON BIEN A LA MER', spécialiste de l'immobilier neuf sur les côtes Bretonnes, vous présente :
Résidence livrée, visitable, frais de notaire réduits. Emplacement central : A pied : 8 min gare, 15 min plage des Bas Sablons/St Servan, 18 min Sillon, 16 min Marché de Rocabey, 5 min Centre Hospitalier.
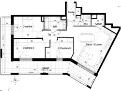
T4 avec superbe terrasse de 28m2 expo sud et ouest, comprenant : - Séjour 27,2m2 avec cellier, entrée, placard, wc séparé - 3 chambres11,43-11,71-9,11m2 - salle de bains 4,89m2double vasque,
Chauffage électrique, parking double sous sol.
Nous Consulter
Honoraires à la charge du vendeur. Classe énergie A, Classe climat A Montant estimé des dépenses annuelles d'énergie pour un usage standard : entre 380.00 et 580.00 sur les années 2021, 2022 et 2023 (abonnements compris). Les informations sur les risques auxquels ce bien est exposé sont disponibles sur le site Géorisques : georisques.gouv.fr.
Votre conseiller MON BIEN A LA MER : Gérant - .fr MON BIEN A LA MER Carte T CPI 2201 2018 000 025 040 RCP ACM IARD B1 7025278
77.29 m²
5 628 €
27 m²
4
3
1
1
1 (séparé)
2 sur 6
Sud
Ouest
Oui
2
1
Oui
Consommations énergétiques
Logement économe
50
Logement énergivore (kWhEP/m2/an)
Émissions de gaz à effet de serre
Faible émission de GES
1
Forte émission de GES(kgeqCO2/m2/an)
Contact mon bien à la mer
Contacter gratuitement à l'aide du formulaire ci-dessous.