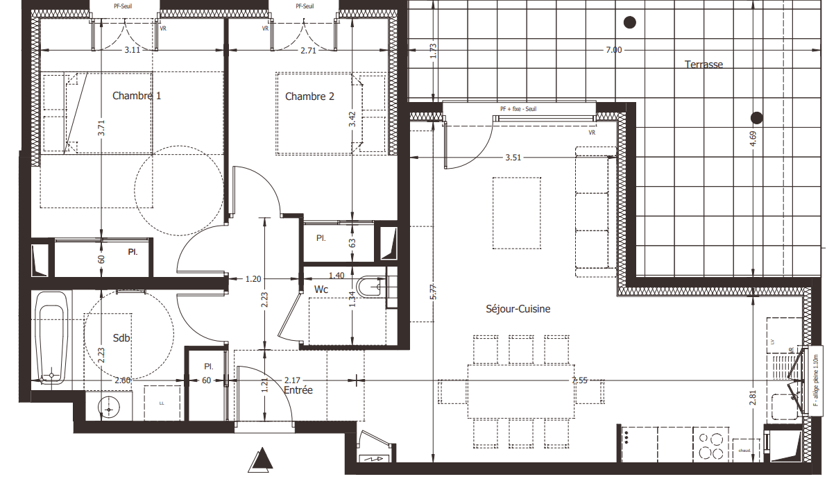
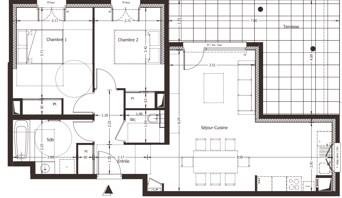
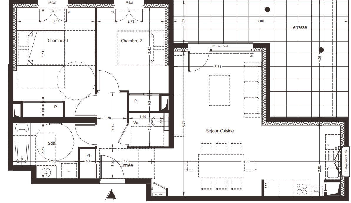
Nouvelle exclusivité pour notre agence BC Immobilier: coup de coeur pour ce vaste T4 de 114m2 situé au rez de chaussée d'une petite copropriété de 9 appartements, situé en plein coeur du charmant village de Segny.
Composé d'un très bel espace de vie de plus de 50m2 avec cuisine équipée et cellier, le salon aux belles poutres apparentes s'ouvre sur une magnifique terrasse de 64m2 face au Jura. Une première chambre est idéale pour un bureau. Dans l'espace nuit, vous bénéficierez de deux vastes chambres, une salle de bains avec douche italienne, wc séparés et une grande chambre de plus de 17m2. En annexe, deux places de parking extérieures. La construction, au charme fou mais bénéficiant des dernières technologies en matière d'isolation thermique (chanvre, ballon thermo dynamique, chauffage par le sol au bois), vous permet de bénéficier de faibles charges (188 /mois tout compris).
Un bien atypique, idéalement situé, qui fera le bonheur de votre famille.
Charges annuelles: 2256 /an tout compris Nbr de lots: 9 Procédure en cours: NON
Les informations sur les risques auxquels ce bien est exposé sont disponibles sur le site Géorisques: www.georisques.gouv.fr
L'équipe de BC IMMOBILIER, Agence au coeur du Pays de Gex, à la frontière de Genève, vous propose un suivi personnalisé pour chaque étape de votre projet immobilier, car chacun de nos clients est unique ! Appartements, Villas, Maisons, terrains , nous vous accompagnons pour la Vente, la Location et la Gestion de vos biens. Allez voir nos avis sur meilleursagents.com, car c'est vous qui en parlez le mieux ! 13 B chemin du Levant 01210 Ferney Voltaire (TPG ligne 66 arrêt Levant et ligne 60 arrêt avenue du Jura)
Honoraires à la charge du vendeur. Dans une copropriété de 24 lots. Quote-part moyenne du budget prévisionnel 2 256 /an. Aucune procédure n'est en cours. DPE en cours. Les informations sur les risques auxquels ce bien est exposé sont disponibles sur le site Géorisques : georisques.gouv.fr.
114 m²
3 772 €
42 m²
4
3
1
1 (séparé)
188.00 € / mois
Est
Ouest
2
1
Oui (24 lots)
Contact Agence BC Immobilier
Contacter gratuitement à l'aide du formulaire ci-dessous.