UN LIEU DE VIE A SAISIR - VIE DE QUARTIER - DISPONIBLE
Découvrez votre nouveau lieu de vie au coeur d'un quartier prisé à Bordeaux. À quelques minutes du centre-ville en tramway et avec un arrêt de bus au pied, une nouvelle vie s'offre à vous au sein de ce quartier ! L'esprit « petit village » saura vous séduire dans cette résidence à taille humaine. Les commerces, les écoles, la vie de quartier se trouvent au pied de l'immeuble. L'arrêt de tramway le plus proche se situe à 4min à pied.
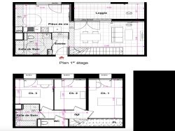
L'appartement traversant se compose d'une entrée avec placard permettant l'accès direct au séjour cuisine de 34m2 lumineux de par ses deux grandes ouvertures, prolongé par une terrasse de 10m2. Une salle de bain avec WC est présente, pouvant être transformée en buanderie. Coté nuit, vous trouverez trois chambres de 9/10/13m2. Vous trouverez également un WC indépendant et une salle de bain avec espace pour le lave linge.
La localisation du bien, ses prestations (volants roulants electriques, menuiserie aluminium, grand séjour/cuisine etc...) ainsi que son prix abordable en font une réelle opportunité.
Une place de parking sécurisée complète le bien en SUS obligatoire (26 400).
- Prix total Appartement avec Parking : 359 000
UN LIEU DE VIE A SAISIR - VIE DE QUARTIER - DISPONIBLE
Honoraires à la charge du vendeur. Dans une copropriété de 11 lots. Aucune procédure n'est en cours. Classe énergie A, Classe climat A Montant estimé des dépenses annuelles d'énergie pour un usage standard : entre 434.00 et 588.00 sur les années 2021, 2022 et 2023 (abonnements compris). Les informations sur les risques auxquels ce bien est exposé sont disponibles sur le site Géorisques : georisques.gouv.fr.