Votre conseiller immobilier Killian Planaguma de l'Agence Welcome est ravi de vous présenter cette superbe résidence neuve en VEFA où se trouve ce magnifique T4 de 82 m² sur la commune de Castelnau-le-Lez.
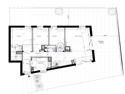
Situé au 3? étage, l'appartement se compose d'un grand séjour lumineux avec cuisine ouverte, bénéficiant d'une triple exposition, d'une suite parentale avec salle d'eau et WC, ainsi que de deux autres chambres, accompagnées d'une salle de bain et d'un WC séparé.
Le véritable atout de ce bien est sa magnifique terrasse de 116 m², sans vis-à-vis, qui pourra être aménagée selon vos envies afin de profiter pleinement de l'extérieur. Enfin, une place de stationnement en sous-sol vient compléter ce bien.
Côté localisation, la résidence se situe à proximité immédiate des commodités, au coeur de Castelnau-le-Lez, avec un accès rapide aux transports en commun et aux commerces.
Livraison prévue : 4? trimestre 2026
Si ce bien vous intéresse et que vous souhaitez obtenir plus d'informations ou organiser une visite, contactez-moi au O7 87 16 14 97.
Honoraires à la charge du vendeur. Dans une copropriété de 22 lots. Aucune procédure n'est en cours. Non soumis au DPE. Les informations sur les risques auxquels ce bien est exposé sont disponibles sur le site Géorisques : georisques.gouv.fr.