Au coeur d'un secteur en pleine évolution à l'entrée de Ferney-Voltaire, ce spacieux appartement de 86,71 m2 situé au 3eme étage offre un cadre de vie moderne, confortable et idéalement connecté à la frontière franco-suisse. Son emplacement privilégié permet de profiter pleinement de la dynamique du centre-ville tout en bénéficiant d'un environnement soigneusement repensé pour le confort des habitants.
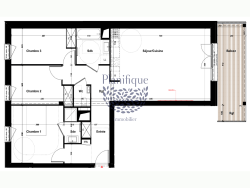
Dès l'entrée, une atmosphère chaleureuse se dégage grâce à un agencement réfléchi et à des volumes généreux. La pièce de vie, vaste et lumineuse, accueille aisément un espace salon et une grande table conviviale. Elle s'ouvre sur un balcon agréable, parfait pour savourer un moment de détente en extérieur et profiter de la vue dégagée. La cuisine, intégrée à l'ensemble, permet une circulation fluide et un quotidien simplifié.
L'appartement se compose de trois chambres confortables, toutes pensées pour offrir sérénité et praticité, que ce soit pour une famille ou pour disposer d'un espace bureau. La suite parentale dispose de sa propre salle d'eau, offrant un véritable espace intime. Une seconde salle de bains, un WC indépendant et de nombreux rangements optimisent l'organisation du logement et renforcent le confort de vie.
Les prestations intérieures témoignent d'un soin particulier apporté à la qualité de l'habitat. Les matériaux utilisés, l'attention portée à la gestion des espaces et la volonté d'offrir un cadre durable créent une ambiance harmonieuse et apaisante. L'accès à un environnement urbain renouvelé, avec une gestion paysagère moderne et de nouveaux aménagements, vient compléter l'attrait de ce bien. Une annexe privative en sous-sol facilite par ailleurs le stationnement ou le stockage.
Cet appartement représente une opportunité rare dans un secteur recherché, où l'on profite d'un équilibre idéal entre vie citadine, proximité avec Genève et qualité architecturale. Un lieu pensé pour offrir confort, modernité et douceur de vivre au quotidien.
Disponibilité prévisionnelle : 2027. Pour tout renseignement complémentaire ou pour être accompagné dans votre projet immobilier, contactez Armel De Gramont Planifique Immobilier.
Planifique Immobilier Bien plus qu'une agence. Notre compétence pluridisciplinaire, alliant immobilier et gestion de patrimoine, nous permet de vous apporter le plus haut niveau de conseil pour votre projet immobilier. Fiscalité, financement, transmission : nous anticipons l'ensemble de ces enjeux afin de vous permettre d'optimiser votre acquisition ainsi que l'ensemble des paramètres qui en découlent.
Les informations sur les risques auxquels ce bien est exposé sont disponibles sur le site Géorisques : www.georisques.gouv.fr
86.71 m²
5 755 €
12 m²
32 m²
4
3
1
1
1
3
Nord
1 (12 m²)
Oui
Oui
Oui
Oui
Contact VASINA Thomas
Contacter gratuitement à l'aide du formulaire ci-dessous.