T4 Neuf de 82,28 m2 avec balcon Résidence Les Roches VIU
Viuz-en-Sallaz 74250
0
Honoraires à la charge du vendeur.
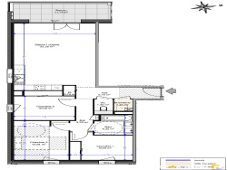
Dernier étage Livraison prévisionnelle 2027 Prestations haut de gamme Situé au 2ème et dernier étage du bâtiment B, ce superbe T4 de 82,28 m2 offre un cadre de vie moderne, lumineux et fonctionnel, au sein de la nouvelle résidence Les Roches, idéalement implantée route des Brasses, dans un environnement naturel et verdoyant. Les atouts du logement
Grande pièce de vie de 32,26 m2 avec cuisine ouverte, donnant sur un balcon de 11,11 m2, parfait pour profiter des beaux jours.
Trois chambres : 9.76 m2, 12.94 m2, 10.09 m2
Salle de bain moderne de 4,35 m2.
WC indépendant.
Buanderie pratique de 1,32 m2.
Hall d'entrée de 5,75 m2 avec placard de 0,76 m2.
Dégagement optimisé de 3,73 m2.
L'appartement bénéficie d'une distribution idéale pour une famille avec un espace nuit bien séparé de la pièce de vie. Prestations premium du programme Confort & modernité:
Architecture contemporaine : enduit + bardage bois vertical
Un environnement privilégié La commune de Viuz-en-Sallaz offre un cadre naturel recherché :
Proximité des grands axes vers Genève, Annemasse, Bonneville et les stations.
Commerces, école et services à quelques minutes.
Vue dégagée et ambiance résidentielle.
Un emplacement idéal pour les familles souhaitant allier confort moderne et qualité de vie. Idéal résidence principale Avec ses volumes généreux, sa buanderie, son grand séjour et ses trois chambres, ce T4 est parfaitement adapté aux familles recherchant un espace moderne, fonctionnel et lumineux. Envie d'en savoir plus ou de réserver ? Contactez-moi ! Je vous accompagnerai, avec bienveillance, dans toutes les étapes de votre projet d'acquisition.
82.28 m²
4 315 €
11 m²
32 m²
4
3
1
1
2 sur 2
01/10/2027
Sud
Ouest
1 (11 m²)
Oui
Oui
Oui (1 lots)
Contact PEAK IMMOBILIER NCI Bonne
Contacter gratuitement à l'aide du formulaire ci-dessous.