Honoraires à la charge de l'acquéreur (Prix hors honoraires : 576000 euros).
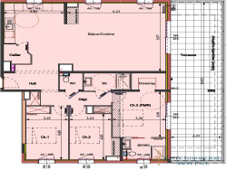
Au centre-ville de Béziers, à 5 min à pieds du coeur historique et 15 min des plages, découvrez ce vaste T4 (124m2) de standing dans une Résidence aux normes PMR et énergétiques sécurisée à l'architecture urbaine et élégante. Vous vous projetterez immédiatement à profiter de sa grande terrasse rare et très recherchée et sa superbe vue . Cet appartement a été conçu pour vous assurer confort et bien-être : séjour spacieux et lumineux, suite parentale avec dressing, prestations de qualité, domotique, climatisation. Les plus: un garage avec prise électrique et une place de parking Laissez-vous tenter par une visite! SON PRIX 599 000 EUROS Frais d 'agence compris. FRAIS DE NOTAIRE REDUITS RDV pour plus de renseignements et visite auprès de SARAH COTTIN au 0660783476 Consultante Immobilière, Inscrite au RSAC BEZIERS 904478542
Honoraires inclus de 3.99% TTC à la charge de l'acquéreur. Prix hors honoraires 576 000 . Dans une copropriété de 27 lots. Aucune procédure n'est en cours. Non soumis au DPE. Les informations sur les risques auxquels ce bien est exposé sont disponibles sur le site Géorisques : georisques.gouv.fr.
Votre conseiller ETUDE IMMOBILIERE SAINT PAUL : Sarah COTTIN Agent commercial (Entreprise individuelle) RSAC 904478542 RCP 127 100 479. Etude Immobilière Saint-Paul Acheter ou Vendez en conscience !
124 m²
4 831 €
55 m²
4
3
1
2 (séparés)
4 sur 5
3.99 %
190.00 € / mois
2024
Sud
Est
Oui
2
1
Oui (27 lots)
Contact Sarah COTTIN
Contacter gratuitement à l'aide du formulaire ci-dessous.