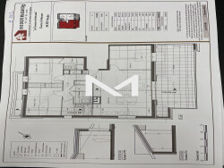
Secteur Charlaix Meylan T4 Terrasse Résidence 'le domaine de Monarié' Résidence de standing neuve déja livrée (frais de notaire reduits). Trés belles prestations dans un environnement résidentiel au coeur d'un parc paysagé Acces PMR / Situé au 1er étage av ascenseur , T4 traversant de 81.71 m² avec piéce de vie donnant sur terrasse Ouest av vue dégagée de 11.23 m², 3 ch av parquet, 1 salle d'eau avec douche a l'italienne, WC/coin buanderie. Ch au sol av plancher ch/rafraichissant av Pompe a chaleur. DPE A. Poss garage en sus au sous sol. Contact : Alice Montaillard 06 25 36 27 30
Honoraires à la charge du vendeur. Dans une copropriété de 49 lots. Quote-part moyenne du budget prévisionnel 1 176 /an. Aucune procédure n'est en cours. Classe énergie A, Classe climat A Montant estimé des dépenses annuelles d'énergie pour un usage standard : entre 438.00 et 480.00 sur les années 2021, 2022 et 2023 (abonnements compris). Les informations sur les risques auxquels ce bien est exposé sont disponibles sur le site Géorisques : georisques.gouv.fr.