TARBES CENTRE IMMEUBLE DE RAPPORT LIBRE AVEC LOCAL COMMERC
Tarbes 65000
0
Honoraires à la charge de l'acquéreur (Prix hors honoraires : 421140 euros).
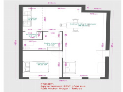
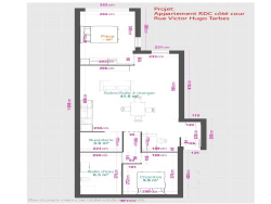
TARBES CENTRE IMMEUBLE DE RAPPORT LIBRE AVEC 2 appartements créés , un PATIO ET 3 LOGEMENTS déjà faits. Le prix comprend l'achat de l'immeuble 250 000 EUR + enveloppe travaux pour faire 2 appartements de plus sur le RDC, à la place du local commercial et travaux parties communes. ENVIRONNEMENT GÉOGRAPHIQUE Situé en coeur de ville à Tarbes, cet immeuble bénéficie d'un emplacement stratégique à proximité immédiate des commodités, commerces, transports ... L'environnement est vivant et dynamique, idéal pour un investissement locatif ou un projet de réaménagement. Le quartier profite d'un bon potentiel de valorisation grâce à sa centralité et sa proximité avec les axes principaux. DESCRIPTION ET COMPOSITION DU BIEN Immeuble libre de toute occupation, comprenant : REZ-DE-CHAUSSÉE :
2 appartements en RDC avec patio
Cave de 50 m2 en sous-sol avec chauffage gaz (eau chaude et chauffage pour le restaurant).
Espace ouvert sur un patio de 66 m2
1er ÉTAGE :
Appartement 1 T3 (fonctionnel)
Cuisine américaine ouverte sur salon
2 chambres
Salle d'eau avec cabine de douche neuve (2 ans), cumulus neuf
Travaux à prévoir sur chéneaux et certaines finitions intérieures
RENTABILITÉ POTENTIELLE
Loyers estimés : 3 x 650 EUR pour les appartements (soit 1 950 EUR mensuels)
Local commercial : loyer potentiel de 1 500 EUR / mois
Rentabilité brute estimée intéressante après remise en état
NOTRE AVIS Un bien à fort potentiel en centre-ville de Tarbes, idéal pour un investisseur ou marchand de biens. Le local commercial avec patio est un vrai atout pour une reconversion en appartements ou pour relancer une activité de restauration. Les logements sont en bon état pour certains, d'autres nécessitent des rafraîchissements. Des combles aménageables et une cave saine viennent compléter ce bien à valoriser. Des travaux sont à prévoir mais la configuration, la localisation et la rentabilité potentielle en font une belle opportunité. Un immeuble qui peut offrir une bonne rentabilité. Actuellement, on pourrait aller chercher une rentabilité de 10% sans la location du local commercial. Avec l'aménagement du local commercial en 2 appartements, on pourrait aller chercher 45 000 EUR de loyers annuels. (10% de rentabilité avec une enveloppe travaux de 200 000 EUR pour l'aménagement du RDC.) Demandez nous la vidéo - Annonce rédigée et publiée par un Agent Mandataire -
350 m²
1 244 €
6.00 %
1960
Oui
Oui
Oui
Consommations énergétiques
Logement économe
190
Logement énergivore (kWhEP/m2/an)
Émissions de gaz à effet de serre
Faible émission de GES
6
Forte émission de GES(kgeqCO2/m2/an)
Contact Florent DUBOS
Contacter gratuitement à l'aide du formulaire ci-dessous.