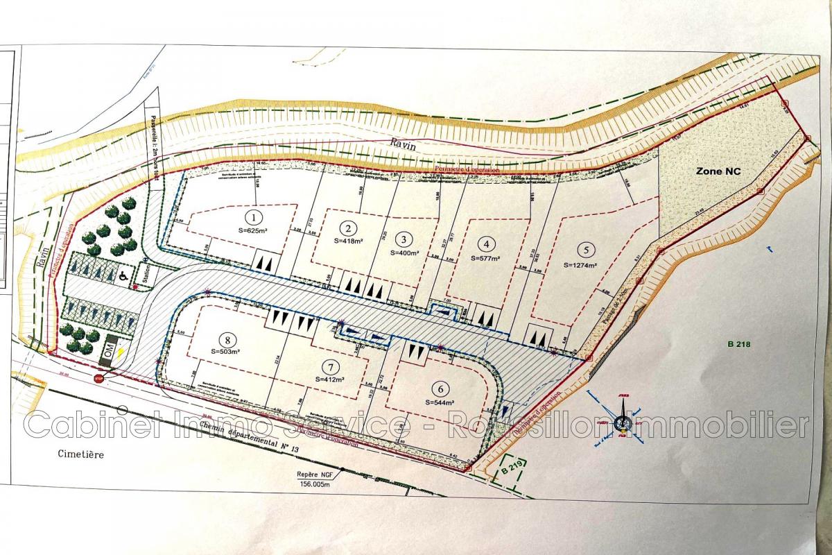
EXCLUSIVITE / TARGASONNE : A 10 minutes de FONT-ROMEU, proche d' EGAT et de l' Espagne, l' Agence LAVILLE IMMO vous propose, à la vente, ce terrain constructible et viabilisé de 328 m2, idéalement situé au coeur de la nature et dans un petit lotissement de seulement 8 parcelles. Ce terrain offre la possibilité d'édifier une villa en 4 faces, avec une surface de plancher autorisée d'environ 160 m2, exposition plein sud et avec une superbe vue dégagée sur les montagnes et la Cerdagne. Une belle opportunité pour concrétiser un projet familial ou un investissement immobilier dans un environnement privilégié, à proximité de toutes les commodités et à quelques minutes des pistes de ski de Font-Romeu. Libre choix du constructeur, , livraison prévisionnelle 2ème trimestre 2026. Un bien rare sur le secteur, à visiter sans tarder. Pour plus d'informations ou organiser une visite, contactez-nous dès aujourd'hui. Les informations sur les risques auxquels ce bien est exposé sont disponibles sur le site www.georisques.gouv.fr. Honoraires d'agence à la charge du vendeur.
328 m²
320 €
328 m²
Oui
Contact BECERRA-LAVILLE
Contacter gratuitement à l'aide du formulaire ci-dessous.