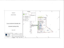
!! DERNIER LOT SOUS COMPROMIS !! Votre agence ESPACE IMMO vous propose à la vente ce terrain à bâtir de 562 m² offrant un cadre idéal pour concrétiser votre projet de construction situé sur la commune de Tôtes. Libre de constructeur, vous avez la liberté totale de concevoir la maison qui vous ressemble. Le terrain est entièrement viabilisé en eau, électricité, tout à l'égout et fibre optique pour la vente. La commune de Tôtes de près de 1600 habitants et située à l'intersection des axes "Rouen - Dieppe" et "Le Havre - Amiens" se veut vivante, dynamique et proche de ses habitants. Elle est dotée d'une quinzaine de commerce de proximité et de deux centres commerciaux. Vous y retrouverez une école maternelle (allant de la petite section à la grande section), une école élémentaire (allant du CP au CM2) ainsi que des équipements sportifs et culturels. En résumé, Tôtes et un bourg rural dynamique, alliant cadre de vie paisible et richesse patrimoniale, idéalement situé avec toutes les commodités nécessaires et un fort potentiel de développement. Ne manquez pas cette opportunité de construire la maison idéale. Contactez votre agence ESPACE IMMO - Pauline WEYRIG pour programmer une visite au 02.35.76.96.23 ! Les informations sur les risques auxquels ce bien est exposé sont disponibles sur le site Géorisques : www.georisques.gouv.fr.