<p>A Pompigan, à l'écart du centre ville en campagne, venez découvrir ce terrain à batir de 4000m2 (environ 29mx140m).</p><p>Ce terrain en campagne à fait l'objet d'un permis de construire accordé par la mairie dont le chantier doit débuter avant avril 2026 (date limite de commencement du permis).
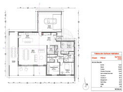
</p><p>La maison d'architecte à bâtir propose de beaux volumes pour un total de 169m2 habitable de plain pied et propose : une vaste entrée avec placard, une pièce à vivre avec cuisine ouverte de 77m2, un cellier, un wc, une grande chambre parentale avec sa salle de bains, deux chambre de 13 et 15m2 et une grande salle d'eau. Un garage attenant de 42m2 complète la maison exposée sud-ouest.
</p>
Prix 100 000€ honoraires exclus.
Honoraires de 8000€ TTC à la charge de l'acquéreur.
Les informations sur les risques auxquels ce bien est exposé sont disponibles sur le site Géorisques : www.georisques.gouv.fr
4000 m²
27 €
4000 m²
Oui
Contact CLERET Hadrien
Contacter gratuitement à l'aide du formulaire ci-dessous.