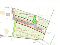
REF42970/1524 : Dans un petit lotissement en impasse, venez découvrir ce terrain viabilisé de 1105 m² ( lot n°5 sur le plan) idéalement situé en bordure de village avec vue imprenable . Plus que 4 lots disponibles, à découvrir sans tarder !
Contactez Pauline JOUILLEROT au 07.78.40.03.12.
Pauline JOUILLEROT (EI) Agent Commercial - Numéro RSAC : 953 724 796 - .
1105 m²
43 €
1105 m²
Oui
Contact Pauline Jouillerot
Contacter gratuitement à l'aide du formulaire ci-dessous.