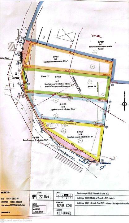
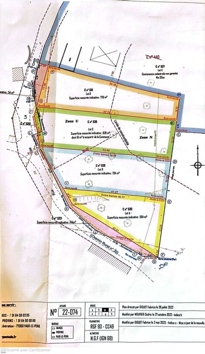
A Courtacon, axe Nationale 4, 15 minutes de la gare de Provins, 10 minutes de La Ferté Gaucher. Terrain à bâtir d'une surface de 776 m², non viabilisé, raccordement sur rue à proximité, façade 17 mètres, lot D d'un plan de division. Commune en regroupement scolaire pour le primaire, collège et lycée. A visiter rapidement, contactez-nous pour organiser une visite Mme REGNIER Laurence 0682301457 - l.regnier@power-immo.com POWERIMMO Seine et Marne - RSAC 881183115
776 m²
68 €
776 m²
Contact Iad France - Laurence BELZIC
Contacter gratuitement à l'aide du formulaire ci-dessous.