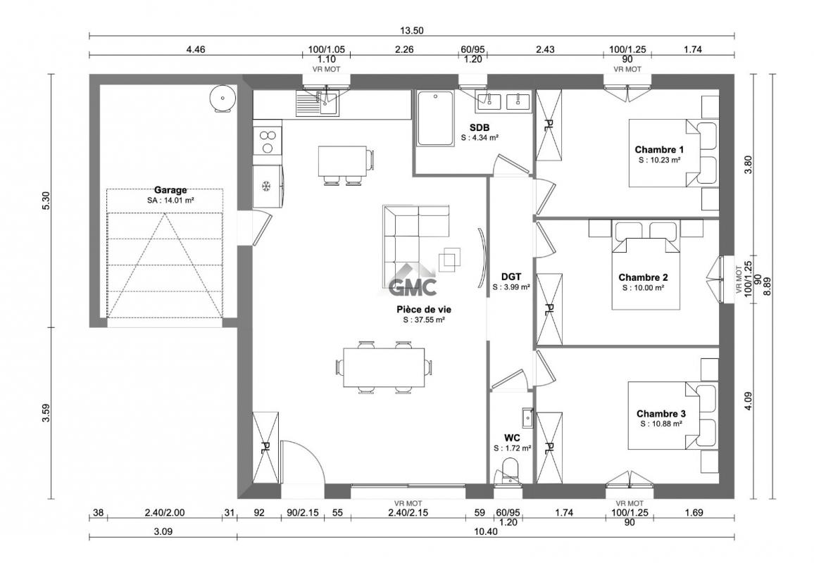
*** BELARGA *** Terrain viabilisé en lotissement prêt à construire - Prêt à taux zéro possible (suivant condition d'éligibilté). Bélarga est un village tranquille situé à 10 minutes de Clermont-l'Hérault, à 2 minutes de Paulhan, à 30 minutes de Montpellier et de ses différentes infrastructures, à 5 minutes de l'A75 et à 10 minutes de Pézenas. La commune de Paulhan (à côté de Bélarga) possède une grande surface, un magasin action, un magasin de bricolage, une salle de sport, un collège, une école primaire, des médecins? (et toutes les autres commodités). Venez découvrir 9 parcelles de terrains à bâtir allant de 331 m² à 685 m² et de 89 000€ à 139 900€ (grille de prix en photo). Ce lotissement vous offrira des terrains plats et viabilisés avec la possibilité d'édifier une maison de plain-pied ou en R+1 (rdc + un étage) dans un cadre paisible et arboré. Nous mettons également à votre disposition un constructeur de maison individuelle en cas de besoin. Vérification du financement par notre partenaire courtier imposé (gratuit et sans engagement). Ne manquez pas cette opportunité et contactez votre agence GMC Immobilier au 04.67.23.96.23
452 m²
219 €
452 m²
Oui
Contact Gmc immobilier
Contacter gratuitement à l'aide du formulaire ci-dessous.