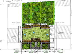
Terrain de 722m2 avec une façade sur rue de 22ml. Projet pour 3 belles maisons jumelées de 145m2 chacune avec jardins et garages complètement indépendants, à 700m du métro des ARDOINES. PC+ attestation de non-recours + TDP payé + étude et plans BET+ électricité et gaz à l'intérieur. Bail en cours jusqu'à fin 2026. Infos supplémentaires sur demande
722 m²
1 294 €
722 m²
Oui
Contact TAIEB Alexandra
Contacter gratuitement à l'aide du formulaire ci-dessous.