Terrain à bâtir 318m2 avec permis purgé Quartier Saint Simon
Toulouse 31000
0
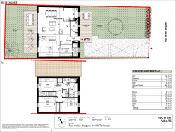
Au sein du Quartier résidentiel de Saint Simon, terrain à batir de 318 m2 arboré par un magnifique Cèdre d'Atlas. Un projet de construction d'une maison individuelle a été déposé par un architecte de renom. La maison fera une superficie totale de 126m2. Au rez de chaussée, vous retrouverez une entrée qui vous aménera vers une cuisine ouverte avec un spacieux salon séjour de 47m2 donnant sur une belle terrasse avec jardin. Une suite parentale avec dressing et salle d'eau complètera ce niveau. A l'étage, vous retrouverez trois chambres avec rangements, une grande salle de bains ainsi qu'une buanderie et Wc. 2 places extérieur vous permettront de stationner facilement. Le terrain sera vendu viabilisée avec permis de construire purgé de tout recours.Possibilité de faire un modificatif. Un chiffrage précis de chaque poste est disponible. Prix net vendeur : 99 000 EUR
310 m²
319 €
310 m²
Est
Ouest
2
Contact L'AGENCE
Contacter gratuitement à l'aide du formulaire ci-dessous.