RARE ! En plein centre du bourg de Saint-Morillon, nous vous proposons ce terrain à bâtir d'environ 230m² avec une constructibilité importante. (Largeur environ 10m)
Zone UA du PLU, possibilité étage (max 8,60m sous faitage), raccordements aux réseaux d'eau et d'électricité effectués, prévoir le tout à l'égout.
Terrain 'libre de constructeur'
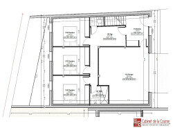
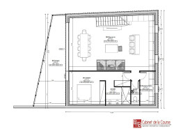
Un permis de construire a été accordé en octobre 2023 pour la réalisation d'une maison 5 pièces de 140m² habitables avec 2 stationnements devant et jardinet arrière plein sud. (PC encore valable à ce jour, dossier consultable sur demande, photo n°3)
Possibilité nouveau permis pour une autre habitation plus ou moins grande, ou un immeuble de rapport comportant 2 à 3 lots (secteur à forte demande locative)
Ecole primaire dans le village, commerces de proximité (épicerie et pharmacie) supermarché à 10min et Bordeaux centre à 35min
Prix fai : 115 000 (honoraires agence charge vendeur)
Pour toute information complémentaire ou un rdv sur place, vous pouvez nous joindre au 05.56.44.05.79/06.66.21.58.06
Honoraires à la charge du vendeur. Les informations sur les risques auxquels ce bien est exposé sont disponibles sur le site Géorisques : georisques.gouv.fr.
230 m²
500 €
230 m²
Oui
Contact Cabinet de la Course
Contacter gratuitement à l'aide du formulaire ci-dessous.