Chez Novarea, les projets de construction évoluent au gré de vos envies.
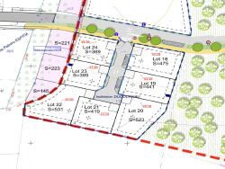
Sur la commune de Benesse Maremne en arrivant d'Angresse, venez découvrir ces terrains plats à partir de 592m2 bornés et viabilisés avec surface plancher 200m2. Verdure, calme et vue dégagée, ces terrains offrent d'importantes possibilités, idéal pour réaliser votre future habitation.
Besoin d'un conseil dans l'aménagement de ce terrain? C'est toute l'équipe de Novarea Architecture qui se propose de vous accompagner dans votre projet de construction.
Au calme mais proche de l'essentiel, commerces, écoles, transports... à 8 minutes d'Hossegor, 15 minutes de Bayonne et des plages.
Envie d'en savoir plus ? de visiter ? Contactez vite Novarea !
592 m²
402 €
592 m²
Contact Novarea Hossegor
Contacter gratuitement à l'aide du formulaire ci-dessous.