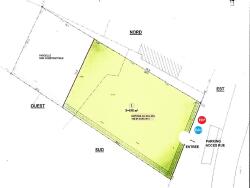
Bel environnement calme et recherché (hors lotissement) situé dans le secteur de St Loubès Cavernes, ce terrain est en 1ère ligne avec une emprise au sol de construction limitée à 20% (soit 160 m² avec R+1 possible et piscinable)
Ce terrain est clôturé et bénéficie des réseaux qui sont présents sur place : EDF / SUEZ / TOUT A L ÉGOUT - Non soumis au DPE.
Pour visiter et vous accompagner dans votre projet,
contactez Laurent ARNAUD au 06 61 657 457 ou par courriel à l.arnaud@proprietes-privees.com
Ce terrain est au prix de 148 000 euros (honoraires à la charge du vendeur. Mandat n°389 283)
L'information quant à l'ERP concernant cette annonce est à retrouver sur le site Géorisques.
Cette présente annonce a été rédigée sous la responsabilité éditoriale de Laurent ARNAUD agissant sous le statut d'agent commercial immatriculé au RSAC 501173728 BORDEAUX auprès de la SAS PROPRIETES PRIVEES, au capital de 40 000 euros, ZAC LE CHÊNE FERRÉ - 44 ALLÉE DES CINQ CONTINENTS 44120 VERTOU; SIRET 487 624 777 00040, RCS Nantes. Carte professionnelle Transactions sur immeubles et fonds de commerce (T) et Gestion immobilière (G) n° CPI 4401 2016 000 010 388 délivrée par la CCI Nantes - Saint Nazaire. Compte séquestre n°30932508467 BPA SAINT-SEBASTIEN-SUR-LOIRE (44230) ; Garantie GALIAN - 89 rue de la Boétie, 75008 Paris - n°28137 J pour 2 000 000 euros pour T et 120 000 euros pour G. Assurance responsabilité civile professionnelle par MMA Entreprise n° de police 120.137.405
Laurent ARNAUD (EI) Agent Commercial - Numéro RSAC : 501173728 BORDEAUX - .
850 m²
174 €
850 m²
Oui
Contact Laurent ARNAUD
Contacter gratuitement à l'aide du formulaire ci-dessous.