Honoraires à la charge de l'acquéreur (Prix hors honoraires : 25000 euros).
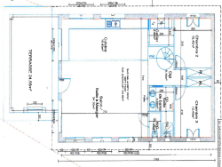
Dans un environnement calme, à 1.5 km du bourg et de l'école du village, venez réaliser votre projet de construction sur ce terrain de 1172 m2 sur lequel un permis de construire a été accordé pour une maison à colombage comprenant une belle pièce de vie de + de 52 m2, un cellier, 2 chambres en RDC, salle de bain et WC et à l'étage 2 autres chambres (voir plan intérieur en photos).
1172 m²
26 €
1172 m²
19.60 %
Contact LAFARGUE
Contacter gratuitement à l'aide du formulaire ci-dessous.